Valutazione immobiliare indipendente, accurata e gratuita
Appartamento in vendita a Rubano a 157.500 € (cod.6543d3b3)
Caasa non ha sufficienti informazioni per commentare l'appartamento in vendita a Rubano - 6543d3b3.
Analisi immobiliare
I dati in posseso di Caasa per quest'immobile sono insufficienti, inaffidabili o contraddittori per proporre un'analisi attendibile.
Mercato immobiliare a Rubano
Per quanto riguarda più in generale la città di Rubano, sono presenti al momento più di 150 annunci per
appartamenti in vendita (meno del 5% dell'intera provincia)
e il maggior numero di annunci per questa tipologia sono relativi alla zona di Sarmeola.
La dinamica dei prezzi in tutta la città mostra che negli ultimi 6 mesi, i prezzi per appartamenti in vendita sono
in leggera diminuzione (-3,21%).
NOVITÀ Il risultato che vedi dipende dai dati che siamo riusciti ad estrarre dall'annuncio: ottieni una stima più accuranta di questo immobile, inserendo dati più precisi.
N.B. L'Opinione di Caasa® è un servizio sperimentale realizzato tramite tecniche di Intelligenza Artificiale, fornito senza alcuna garanzia di correttezza e completezza. Leggi il disclaimer o segnalaci un problema.
IMMAGINI
IN SINTESI
PROPOSTO DA:
MetroQuadro Soluzioni Immobiliari di Elisa Giacomazzi
Via Cesare Pavese 6, Vedelago (TV)
DESCRIZIONE
con posto auto con garage con terrazza in asta giudiziaria
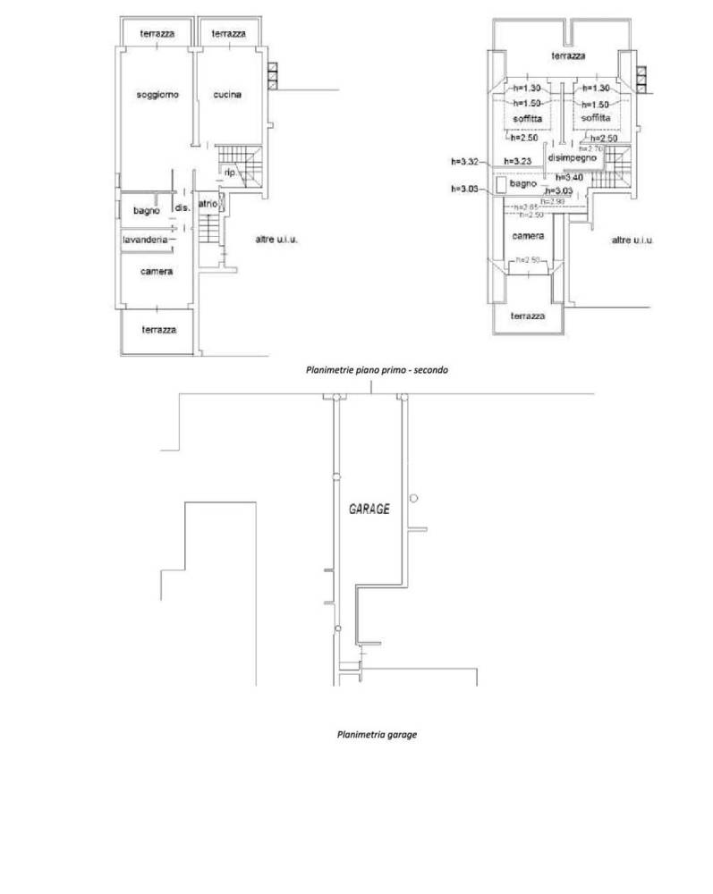
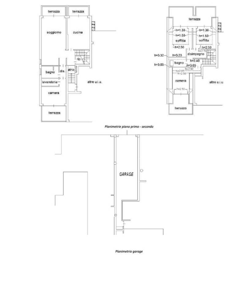
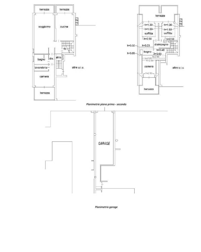
Appartamento sviluppato su due livelli, composto al primo piano da: ingresso, soggiorno e cucina entrambi con accesso alla terrazza, bagno finestrato, disimpegno e camera con terrazza; al piano secondo (sottotetto) da: due locali soffitta con accesso su unico terrazzo, disimpegno, bagno e camera con terrazza; garage al piano semi interrato. L'immobile viene venduto tramite asta giudiziaria. Il prezzo indicato si riferisce all'offerta minima accettata per la partecipazione. MetroQuadro fornisce un servizio di assistenza al fine di rendere più facile e sicuro l'acquisto di un immobile proveniente dal mercato giudiziario: analisi preventiva, conteggio costi accessori ed occulti, assistenza in tutte le fasi della procedura, compresa la liberazione dell'immobile se occupato. L'acquisto dell'immobile puó essere totalmente finanziato tramite mutuo. Consulenza gratuita per un possibile mutuo con un nostro consulente del credito. CLASSE ENERGETICA: Non Dichiarata




