Valutazione immobiliare indipendente, accurata e gratuita
Capannone in vendita a Piove di Sacco a 2.600.000 € (cod.65971429)
Caasa non ha sufficienti informazioni per commentare il capannone in vendita a Piove di Sacco - 65971429.
Analisi immobiliare
I dati in posseso di Caasa per quest'immobile sono insufficienti, inaffidabili o contraddittori per proporre un'analisi attendibile.
Mercato immobiliare a Piove di Sacco
Per quanto riguarda più in generale la città di Piove di Sacco, sono presenti al momento più di dieci annunci per
capannoni in vendita (meno del 5% dell'intera provincia)
e il maggior numero di annunci per questa tipologia sono relativi alla zona di Piovega.
Vedi altre informazioni direttamente su
Mercato-Immobiliare.info
NOVITÀ Il risultato che vedi dipende dai dati che siamo riusciti ad estrarre dall'annuncio: ottieni una stima più accuranta di questo immobile, inserendo dati più precisi.
N.B. L'Opinione di Caasa® è un servizio sperimentale realizzato tramite tecniche di Intelligenza Artificiale, fornito senza alcuna garanzia di correttezza e completezza. Leggi il disclaimer o segnalaci un problema.
IMMAGINI
IN SINTESI
PROPOSTO DA:
TORREROSSA Immobiliare snc
DESCRIZIONE
di recente costruzione di recente costruzione senza ascensore
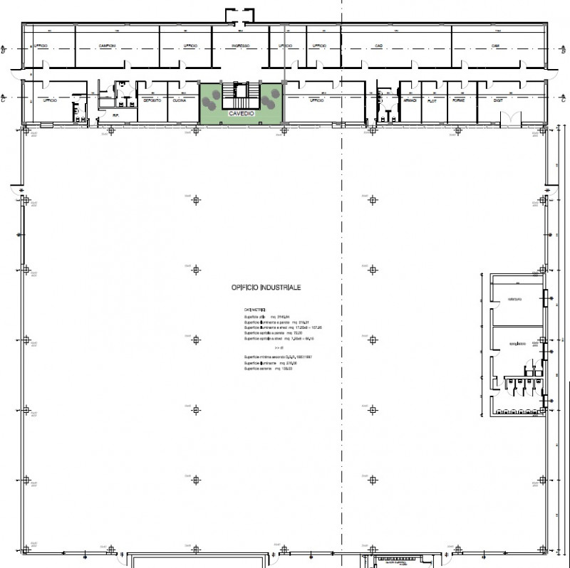
Proponiamo in vendita spazioso capannone artigianale/industriale nella zona del Piovese Ottima opportunità per imprenditori e aziende alla ricerca di un nuovo spazio operativo. L'immobile è ideale per uso laboratorio, magazzino ma anche attività di logistica e per carico/scarico merce. Il fabbricato è collocato su un area totale di 8400 mq circa con ben due accessi carrai. L'immobile è composto da circa 3250 mq di capannone con altezza 7,20 metri sotto trave, più uffici e show room di 1500 mq circa distribuiti su due piani. Il capannone è dotato di predisposizione carroponte, 5 portoni ed impianto fotovoltaico. L'immobile viene venduto allo stato grezzo avanzato. Se ti interessa visionarla senza alcun impegno chiamaci! PAOLO 3290517450 L'indirizzo indicato nell'annuncio ed il puntatore visualizzato nella mappa per motivi di privacy sono solamente indicativi. Siamo a vostra disposizione per fornirvi ulteriori informazioni Potete scriverci a info@lindustriale.com chiamarci o inviarci un messaggio su whatsapp L'INDUSTRIALE Agenzia Immobiliare via Castello n. 49A 35028 Piove di Sacco PD tel. 0495841160 Vuoi vendere il tuo immobile? Non esitare a contattarci, daremo massima visibilità al tuo immobile, SENZA ALCUNA SPESA, inserendolo all'interno di tutte le nostre piattaforme: - Pubblicazione nei principali Portali Online e nei nostri canali Social - Inserimento all'interno del nostro sito internet www.lindustriale.com - Presenza nelle nostre Vetrineper laboratorio ma anche attività di logistica e per carico/scarico di merce





