Valutazione immobiliare indipendente, accurata e gratuita
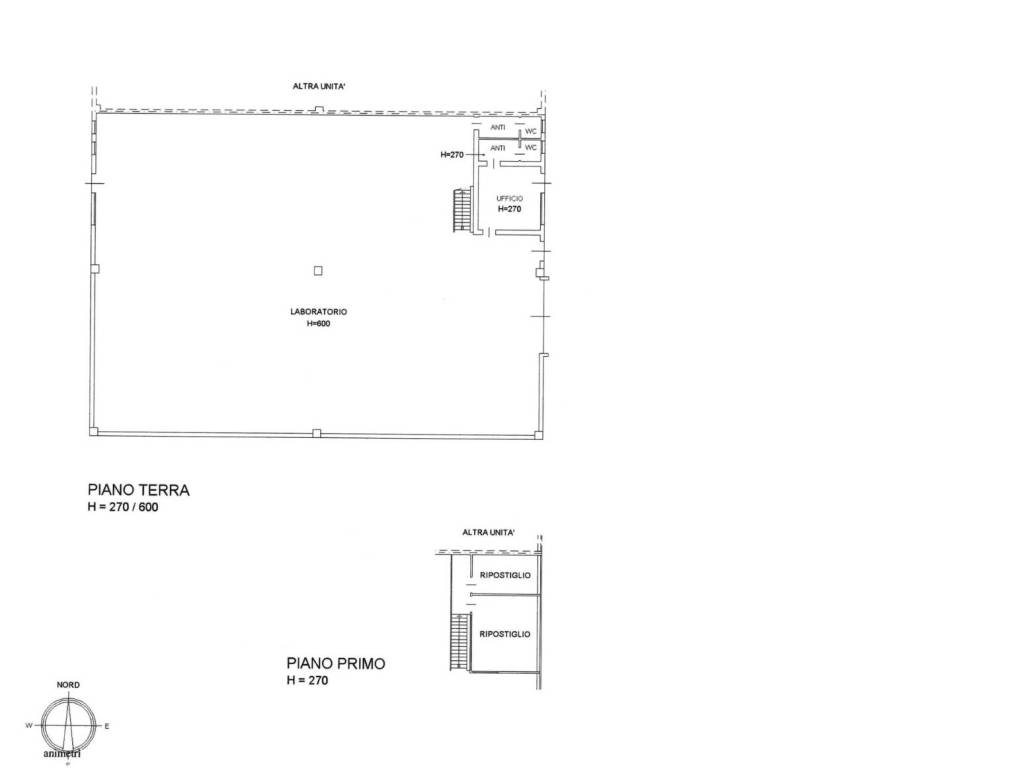
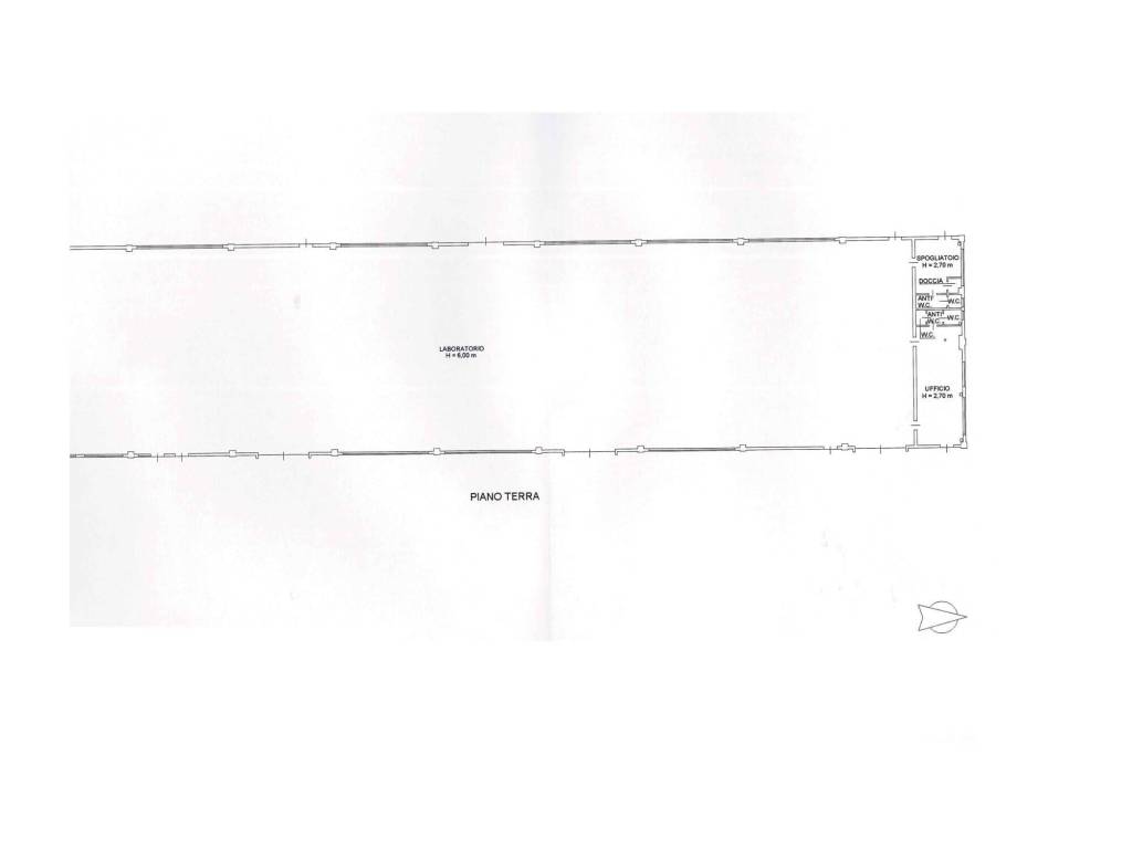
Locale commerciale in affitto a Piombino Dese (cod.651a5542)
Caasa non ha sufficienti informazioni per commentare il locale commerciale in affitto a Piombino Dese - 651a5542.
Analisi immobiliare
I dati in posseso di Caasa per quest'immobile sono insufficienti, inaffidabili o contraddittori per proporre un'analisi attendibile.
Mercato immobiliare a Piombino Dese
Per quanto riguarda più in generale il comune di Piombino Dese, sono presenti al momento meno di dieci annunci per
locali commerciali in affitto (meno del 5% dell'intera provincia)
e il maggior numero di annunci per questa tipologia sono relativi alla zona di Levada.
Vedi altre informazioni direttamente su
Mercato-Immobiliare.info
NOVITÀ Il risultato che vedi dipende dai dati che siamo riusciti ad estrarre dall'annuncio: ottieni una stima più accuranta di questo immobile, inserendo dati più precisi.
N.B. L'Opinione di Caasa® è un servizio sperimentale realizzato tramite tecniche di Intelligenza Artificiale, fornito senza alcuna garanzia di correttezza e completezza. Leggi il disclaimer o segnalaci un problema.
IMMAGINI
IN SINTESI
PROPOSTO DA:
LA MERIDIANA IMMOBILIARE S.A.S. DI CECCON JURI
VIA ROMA N 20/B, Vedelago (TV)
