Valutazione immobiliare indipendente, accurata e gratuita
Appartamento in vendita a Pernumia a 138.000 € (cod.65377d5f)
Caasa non ha sufficienti informazioni per commentare l'appartamento in vendita a Pernumia - 65377d5f.
Analisi immobiliare
I dati in posseso di Caasa per quest'immobile sono insufficienti, inaffidabili o contraddittori per proporre un'analisi attendibile.
Mercato immobiliare a Pernumia
Per quanto riguarda più in generale il comune di Pernumia, sono presenti al momento più di trenta annunci per
appartamenti in vendita (meno dell'1% dell'intera provincia) .
NOVITÀ Il risultato che vedi dipende dai dati che siamo riusciti ad estrarre dall'annuncio: ottieni una stima più accuranta di questo immobile, inserendo dati più precisi.
N.B. L'Opinione di Caasa® è un servizio sperimentale realizzato tramite tecniche di Intelligenza Artificiale, fornito senza alcuna garanzia di correttezza e completezza. Leggi il disclaimer o segnalaci un problema.
IMMAGINI
IN SINTESI
PROPOSTO DA:
STUDIO 8 SRL
DESCRIZIONE
di recente costruzione con posto auto con garage senza ascensore con termocondizionamento con riscaldamento autonomo di recente costruzione con angolo cottura con ascensore
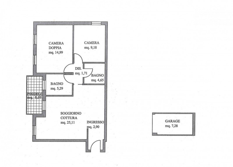
PERNUMIA: Proponiamo un appartamento situato all'ultimo piano, con ascensore, di un edificio costruito nel 2007. L'immobile, di 90 mq, offre spazi ben distribuiti e funzionali. All'ingresso si accede a un luminoso soggiorno che si apre su un'ampia cucina, ideale per chi ama cucinare e intrattenere. La zona notte comprende due camere da letto, perfette per una famiglia o per chi desidera uno spazio aggiuntivo per ospiti o studio. Sono presenti due bagni, che garantiscono comfort e praticità. Un terrazzo offre uno spazio esterno privato, ideale per momenti di relax. L'appartamento è dotato di aria condizionata, assicurando un ambiente confortevole in ogni stagione. Completa la proprietà un garage, che offre comodità e sicurezza per il parcheggio. L'arredamento moderno è incluso nel prezzo, permettendo di entrare subito in un ambiente accogliente e ben curato. Siamo Abitiamo Group: una rete di agenzie immobiliari in provincia di Padova formata da professionisti altamente qualificati, che propone soluzioni personalizzate per la vendita, locazione, acquisto e investimento di immobili, ad Albignasego, Monselice e Battaglia Terme. Tre realtà un'unica casa! Mettiamo il cliente e le sue esigenze immobiliari al centro, offrendo un servizio eccellente basato su 28 anni di esperienza e formazione nel settore. Forniamo un'esperienza di compravendita caratterizzata da professionalità, trasparenza e onestà, garantendo la massima cura e attenzione in ogni fase del processo





