Valutazione immobiliare indipendente, accurata e gratuita
L'Opinione di Caasa® per l'appartamento in vendita a Padova in zona Centro Storico a 500.000 € (cod.657c8194)
Secondo Caasa, per l'appartamento a Padova in zona Centro Storico, la richiesta di 500.000 € è significativamente vantaggiosa rispetto agli annunci simili.
Analisi immobiliare
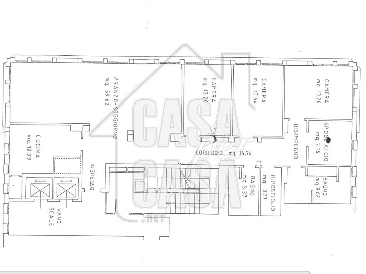
L'appartamento, situato nella zona OMI B2, è proposto in vendita a
500.000 € per una
superficie commerciale di
175 m² e quindi ad un prezzo per metro quadrato pari a
2857 €/m²
.
Questo valore
è significativamente più basso di quello stimato da Caasa per immobili in vendita simili per tipologia, caratteristiche, classe energetica e localizzati nella stessa zona OMI, che è compreso tra
3.435 €/m² e
3.733 €/m².
La conoscenza con buona approssimazione della localizzazione dell'immobile ha consentito di utilizzare come raffronto i dati medi elaborati esattamente nella zona OMI di appertenenza (CARMINE, SAVONAROLA, RIVIERE EXT., PORTA SAN GIOVANNI, CITTA GIARDINO, SANTA ...) per appartamenti (da 2.625 €/m² a 4.450 €/m²) e per case indipendenti (da 2.305 €/m² a 4.395 €/m²). Inoltre, Caasa ha potuto affinare la stima anche con la conoscenza della classe energetica (D). Per queste ragioni è possibile considerare un intervallo di valori accettabili per l'offerta abbastanza limitato.
Mercato immobiliare a Padova
Per quanto riguarda più in generale la città di Padova, sono presenti al momento ben oltre 3.000 annunci per
appartamenti in vendita (meno di un terzo dell'intera provincia)
e il maggior numero di annunci per questa tipologia sono relativi proprio alla zona di Centro Storico.
La richiesta media nella zona dove sorge l'appartamento (Centro Storico) è pari a
3.655 €/m² e ne fa la più pregiata della città .
Per quanto riguarda la dinamica dei prezzi, negli ultimi 6 mesi i prezzi medi in tutta la città per appartamenti in vendita sono
in aumento (+4,41%).
NOVITÀ Il risultato che vedi dipende dai dati che siamo riusciti ad estrarre dall'annuncio: ottieni una stima più accuranta di questo immobile, inserendo dati più precisi.
N.B. L'Opinione di Caasa® è un servizio sperimentale realizzato tramite tecniche di Intelligenza Artificiale, fornito senza alcuna garanzia di correttezza e completezza. Leggi il disclaimer o segnalaci un problema.
IMMAGINI
IN SINTESI
PROPOSTO DA:
casa-per-casa-di-rossi-stefano
