Valutazione immobiliare indipendente, accurata e gratuita

Appartamento a Padova in zona Sant'Osvaldo / Santa Rita a 155.000 € (cod.64e378d1)

Caasa non ha sufficienti informazioni per commentare l'appartamento a Padova Sant'Osvaldo / Santa Rita - 64e378d1.

Analisi immobiliare
I dati in posseso di Caasa per quest'immobile sono insufficienti, inaffidabili o contraddittori per proporre un'analisi attendibile.
Mercato immobiliare a Padova
Per quanto riguarda più in generale la città di Padova, sono presenti al momento ben oltre 3.000 annunci per appartamenti in vendita (meno di un terzo dell'intera provincia) e il maggior numero di annunci per questa tipologia sono relativi alla zona di Centro Storico, mentre la zona di Sant'Osvaldo / Santa Rita risulta molto meno attiva considerando il numero di annunci presenti.
La richiesta media nella zona dove sorge l'appartamento (Sant'Osvaldo / Santa Rita) è pari a 2.810 €/m², molto vicina ai valori della zona Centro Storico che sono i più alti della città .
Relativamente alla dinamica dei prezzi, possiamo dire che negli ultimi 6 mesi i prezzi medi in tutta la città per appartamenti in vendita sono in deciso aumento (+9,50%).

NOVITÀ Il risultato che vedi dipende dai dati che siamo riusciti ad estrarre dall'annuncio: ottieni una stima più accuranta di questo immobile, inserendo dati più precisi.

N.B. L'Opinione di Caasa® è un servizio sperimentale realizzato tramite tecniche di Intelligenza Artificiale, fornito senza alcuna garanzia di correttezza e completezza. Leggi il disclaimer o segnalaci un problema.

IMMAGINI

IN SINTESI

Prezzo:
155.000 €
Superficie:
40 m²
Prezzo al m²:
3875 €/m²
Piano:
n.d.
Bagni:
1
Classe energetica:
n.d.
Città:
Padova (PD)
Zona OMI:
C5 (MADONNA PELLEGRINA, S.RITA, NAZARETH,SANT`OSVALDO)
Pubblicato:
lun 29 settembre 2025

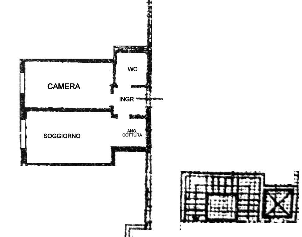
DESCRIZIONE

con posto auto con angolo cottura

BILOCALE ARREDATO IN ZONA FACCIOLATI €.155.000 rif.cl500 Scopri questo interessante appartamento bilocale di 40 mq situato nel cuore della rinomata zona FACCIOLATI. Ideale per chi desidera vivere vicino agli ospedali e ai principali servizi cittadini […]

  • wikicasa.free