Valutazione immobiliare indipendente, accurata e gratuita
L'Opinione di Caasa® per l'appartamento a Padova in zona Sant'Osvaldo / Santa Rita a 555.000 € (cod.64914f66)
Secondo Caasa, per l'appartamento a Padova Sant'Osvaldo / Santa Rita, la richiesta di 555.000 € è leggermente vantaggiosa rispetto agli annunci simili.
Analisi immobiliare
L'appartamento, situato nei pressi di Via Giovanni Canestrini nella zona OMI D8, è proposto in vendita a
555.000 € per una
superficie commerciale di
162 m² e quindi ad un prezzo per metro quadrato pari a
3425 €/m²
.
Questo prezzo
è un po' più basso di quello stimato da Caasa per immobili in vendita simili per tipologia, caratteristiche, classe energetica e localizzati nella stessa zona OMI, che è compreso tra
3.575 €/m² e
3.792 €/m².
La conoscenza con buona approssimazione della localizzazione dell'immobile ha consentito di utilizzare come raffronto i dati medi elaborati esattamente nella zona OMI di appertenenza (S. GREGORIO, TERRANEGRA, FORCELLINI EST) per appartamenti (da 2.045 €/m² a 3.715 €/m²) e per attici (da 1.960 €/m² a 3.315 €/m²). Inoltre, Caasa ha potuto affinare la stima anche con la conoscenza della classe energetica (A+) oltre che dello stato dell'immobile (di nuova costruzione) e di alcune caratteristiche significative come il garage, la presenza dell'ascensore o la disponibilità di una cantina. Per questi motivi è possibile considerare un intervallo di valori accettabili per l'offerta abbastanza limitato.
Mercato immobiliare a Padova
Per quanto riguarda più in generale la città di Padova, sono presenti al momento ben oltre 3.000 annunci per
appartamenti in vendita (quasi il 40% dell'intera provincia)
e il maggior numero di annunci per questa tipologia sono relativi alla zona di Centro Storico, mentre la zona di Sant'Osvaldo / Santa Rita risulta molto meno attiva considerando il numero di annunci presenti.
La richiesta media nella zona dove sorge l'appartamento (Sant'Osvaldo / Santa Rita pressi Via Giovanni Canestrini) è pari a
2.860 €/m², molto vicina ai valori della zona Savonarola che sono i più alti della città .
Possiamo inoltre considerare che in tutta la città negli ultimi 6 mesi, i prezzi per appartamenti in vendita sono
in deciso aumento (+9,50%).
NOVITÀ Il risultato che vedi dipende dai dati che siamo riusciti ad estrarre dall'annuncio: ottieni una stima più accuranta di questo immobile, inserendo dati più precisi.
N.B. L'Opinione di Caasa® è un servizio sperimentale realizzato tramite tecniche di Intelligenza Artificiale, fornito senza alcuna garanzia di correttezza e completezza. Leggi il disclaimer o segnalaci un problema.
IMMAGINI
IN SINTESI
PROPOSTO DA:
SZAFFARI IMMOBILIARI S.A.S.
DESCRIZIONE
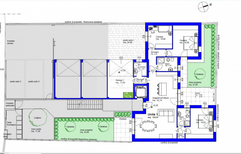
di nuova costruzione con posto auto con garage con terrazza con termocondizionamento con cantina con giardino con ascensore di nuova costruzione con riscaldamento autonomo con angolo cottura
SANT' OSVALDO - PADOVA A Padova, in una zona residenziale tranquilla e ben servita, a pochi passi dall'Ospedale Sant'Antonio, sorgerà un esclusivo complesso di sole tre unità abitative. L'inizio dei lavori è previsto per Settembre 2025 e si tratta di un progetto pensato per chi desidera vivere in un contesto raffinato, moderno e a basso impatto energetico. Le principali caratteristiche degli appartamenti sono: - Unità A appartamento al piano terra con giardino esclusivo di 60 mq: soggiorno con angolo cottura, 3 camere, 2 bagni, lavanderia, ripostiglio. Euro 555.000 - Unità B appartamento al primo piano: soggiorno con angolo cottura, 3 camere, 2 bagni, ripostiglio. Euro 525.000 - Unità C attico su 2 livelli (primo e ultimo piano) con terrazze abitabili una di 27 mq e una di 42 mq: soggiorno con angolo cottura, 4 camere, 2 bagni, ripostiglio. 735.000 Ogni appartamento è dotato di garage e posto auto privati. Questo complesso sarà dotato di tutte le comodità più ricercate in ambito abitativo contemporaneo. Sarà edificato in classe nZEB, con impianto fotovoltaico per il massimo contenimento energetico, ventilazione meccanica controllata per una qualità dell'aria sempre ottimale, zanzariere su tutti gli infissi, impianto d'allarme perimetrale già installati. Queste abitazioni rappresentano una proposta davvero rara: spazi generosi, distribuzione interna su due livelli indipendenti, terrazze ampie e vivibili, finiture di pregio e un contesto residenziale riservato, con sole tre unità. Immobili pensati per chi desidera distinguersi, senza rinunciare a nulla. Classe energetica classe "A4". Consegna DICEMBRE 2026. VENDITA DIRETTA, senza mediazione. Rif. 1781





