Valutazione immobiliare indipendente, accurata e gratuita
Casa indipendente in vendita a Noventa Padovana a 225.000 € (cod.6548de9f)
Caasa non ha sufficienti informazioni per commentare la casa indipendente in vendita a Noventa Padovana - 6548de9f.
Analisi immobiliare
I dati in posseso di Caasa per quest'immobile sono insufficienti, inaffidabili o contraddittori per proporre un'analisi attendibile.
Mercato immobiliare a Noventa Padovana
Per quanto riguarda più in generale il comune di Noventa Padovana, sono presenti al momento più di 150 annunci per
case indipendenti in vendita (meno del 5% dell'intera provincia)
e il maggior numero di annunci per questa tipologia sono relativi alla zona di Noventana.
La dinamica dei prezzi in tutto il comune mostra che negli ultimi 6 mesi, i prezzi per case indipendenti in vendita sono
in deciso aumento (+9,11%).
NOVITÀ Il risultato che vedi dipende dai dati che siamo riusciti ad estrarre dall'annuncio: ottieni una stima più accuranta di questo immobile, inserendo dati più precisi.
N.B. L'Opinione di Caasa® è un servizio sperimentale realizzato tramite tecniche di Intelligenza Artificiale, fornito senza alcuna garanzia di correttezza e completezza. Leggi il disclaimer o segnalaci un problema.
IMMAGINI
IN SINTESI
DESCRIZIONE
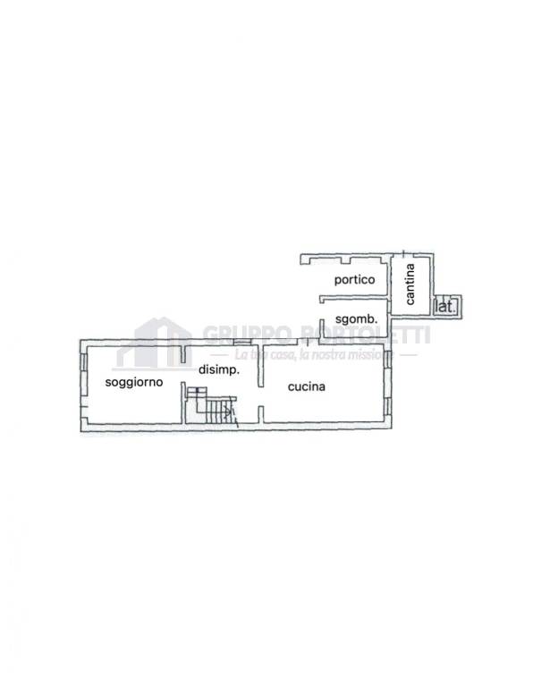
da ristrutturare con giardino con cantina da ristrutturare
Nel cuore di Noventa Padovana, lungo una delle vie principali del centro storico e a pochi passi da tutti i servizi, Gruppo Bortoletti è lieto di presentarti un incantevole rustico sviluppato su tre livelli, impreziosito da un ampio giardino privato con pozzo funzionante. Varcato il cancello d’ingresso, ci accoglie un grande giardino che conduce al portico. Da qui si accede all’abitazione: l’ingresso si apre da un lato verso il soggiorno e dall’altro verso la cucina, completata da un bagno. Sullo stesso livello troviamo anche una cantina e un locale sgombero, ideali come spazi di supporto. Salendo al piano superiore si sviluppa la zona notte, composta da due camere e un secondo disimpegno. All’ultimo piano, un’ampia soffitta offre ulteriori possibilità di personalizzazione. L’immobile è completamente da ristrutturare, ma la posizione strategica e di pregio rappresenta un valore aggiunto importante: una soluzione perfetta per chi desidera investire o creare un’abitazione su misura per sé e per la propria famiglia. Il grande giardino che circonda la casa garantisce privacy e versatilità. Per gli appassionati degli spazi esterni, è possibile immaginare una splendida area relax con piscina, un tavolo per pranzi e cene estive o una zona lounge con comodi divanetti. Qui puoi davvero costruire il tuo rifugio personale, un’oasi di benessere lontana dal caos, pur restando immerso nelle comodità offerte da Noventa Padovana. Non perdere questa opportunità: sogna in grande e crea il tuo angolo di paradiso! Euro 225.000 Rif.1244


