Valutazione immobiliare indipendente, accurata e gratuita
L'Opinione di Caasa® per l'appartamento in vendita a Noventa Padovana a 210.000 € (cod.650310c7)
Secondo Caasa, per l'appartamento in vendita a Noventa Padovana, la richiesta di 210.000 € è leggermente svantaggiosa rispetto agli annunci simili.
Analisi immobiliare
L'appartamento è proposto in vendita (da Immobiliare Limes) a
210.000 € per una
superficie commerciale di
89 m² e quindi ad un prezzo per metro quadrato pari a
2359 €/m²
.
Tale valore
è leggermente meno conveniente di quello stimato da Caasa per immobili in vendita simili per tipologia e caratteristiche, che è compreso tra
1.968 €/m² e
2.252 €/m².
E' stato possibile utilizzare nel raffronto i soli valori medi cittadini. Caasa non è stata infatti in grado di determinare in modo affidabile la posizione né la classe energetica dell'immobile. Ad affinare la stima hanno contribuito però anche lo stato dell'immobile (di nuova costruzione) e la presenza di alcune caratteristiche significative come il garage. Per queste considerazioni i valori considerati accettabili per l'offerta economica devono costituire un intervallo adeguatamente ampio.
Mercato immobiliare a Noventa Padovana
Per quanto riguarda più in generale il comune di Noventa Padovana, sono presenti al momento circa cento annunci per
appartamenti in vendita (meno del 5% dell'intera provincia)
e il maggior numero di annunci per questa tipologia sono relativi alla zona di Noventana.
La dinamica dei prezzi in tutto il comune mostra che negli ultimi 6 mesi, i prezzi per appartamenti in vendita sono
in forte aumento (+19,24%).
NOVITÀ Il risultato che vedi dipende dai dati che siamo riusciti ad estrarre dall'annuncio: ottieni una stima più accuranta di questo immobile, inserendo dati più precisi.
N.B. L'Opinione di Caasa® è un servizio sperimentale realizzato tramite tecniche di Intelligenza Artificiale, fornito senza alcuna garanzia di correttezza e completezza. Leggi il disclaimer o segnalaci un problema.
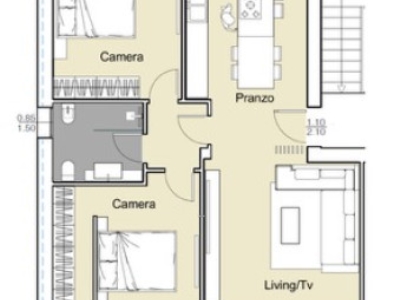
IMMAGINI
IN SINTESI
DESCRIZIONE
di nuova costruzione con posto auto con garage con termocondizionamento con terrazza con riscaldamento autonomo di nuova costruzione di recente ristrutturazione
Limes Immobilaire ha il piacere di presentare sul mercato immobiliare di Noventa Padovana nel quartiere Oltrebrenta , in prossimità della bellissima Riviera del Brenta un nuovo progetto in fase di ultimazione dopo un accurata e totale ristrutturazione del palazzo creando un perfetto connubio tra gli spazi , le finiture e le tecnologie . Presentiamo una soluzione abitativa la primo piano dove design contemporaneo e materiali naturali si fondono per creare un ambiente unico. La zona notte , ben disimpegnata offre due camere da letto matrimoniali , ma è la zona giorno ad offire una scelta distintiva tra le due anime , un ampio living dedicato al relax , con accesso diretto alla terrazza principale e una cucina con zona pranzo separata e accogliente affacciata sul secondo terrazzo i tutto servito da un bagno finestrato con possibilità di creare un secodno bagno ad uso lavanderia. Ideale per chi cerca tranquilità e una distinzione funzionale tra gli spazi. Il tutto completato dal box auto ubicato al piano terra. Possibilità di scleta e personalizzazione finiture . Dettagli costruttivi e dotazioni : - capotto da 14 cm - riscaldamento a pavimento con caldaia a condensazione - VMC installata - aria condizionata istallata - garage motorizzato - box doccia incluso con piatti doccia da 120 X 80 già da capitolato Consegna marzo 2026. Prezzo richiesto E 210000,00 più iva di legge

