Valutazione immobiliare indipendente, accurata e gratuita
Casa indipendente in vendita a Monselice a 485.000 € (cod.654df0b0)
Caasa non ha sufficienti informazioni per commentare la casa indipendente in vendita a Monselice - 654df0b0.
Analisi immobiliare
I dati in posseso di Caasa per quest'immobile sono insufficienti, inaffidabili o contraddittori per proporre un'analisi attendibile.
Mercato immobiliare a Monselice
Per quanto riguarda più in generale la città di Monselice, sono presenti al momento più di 200 annunci per
case indipendenti in vendita (meno del 5% dell'intera provincia)
e il maggior numero di annunci per questa tipologia sono relativi alla zona di Ca' Oddo.
Per quanto riguarda la dinamica dei prezzi, negli ultimi 6 mesi i prezzi medi in tutta la città per case indipendenti in vendita sono
sostanzialmente stabili (+1,01%).
NOVITÀ Il risultato che vedi dipende dai dati che siamo riusciti ad estrarre dall'annuncio: ottieni una stima più accuranta di questo immobile, inserendo dati più precisi.
N.B. L'Opinione di Caasa® è un servizio sperimentale realizzato tramite tecniche di Intelligenza Artificiale, fornito senza alcuna garanzia di correttezza e completezza. Leggi il disclaimer o segnalaci un problema.
IMMAGINI
IN SINTESI
PROPOSTO DA:
Gabetti monselice
DESCRIZIONE
con giardino con posto auto con garage con termocondizionamento con terrazza con riscaldamento autonomo con cucina abitabile con caminetto con balcone
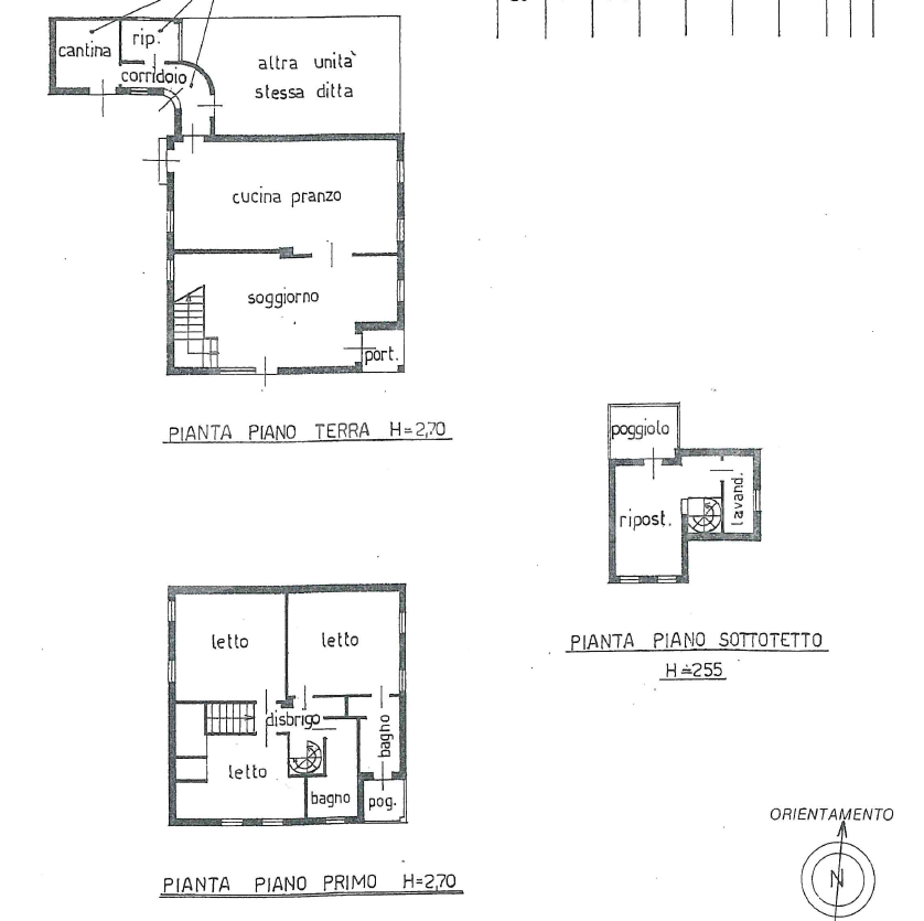
CASA SINGOLA CON GIARDINO A MONSELICE Si propone in vendita una casa singola con giardino in zona centrale a Monselice, comoda a tutti i servizi principali: centro storico, supermercati e autostrada. Con una superficie di 234 mq, questa propriet si compone su 3 livelli. Al piano terra si trova uno spazioso e luminoso soggiorno dotato di stufa centrale, una cucina open space con sala da pranzo provvista di camino molto grande ottimo per gli appassionati di cucina. Sempre al piano terra presente la zona lavanderia, con bagno di servizio. Al primo piano troviamo 3 camere da letto di cui 2 matrimoniali e una doppia. La camera padronale dotata di bagno en suite e da un gradevole e intimo terrazzo. Le altre due stanze sono servite da un ulteriore bagno al piano. Al secondo piano si trova lo studio che pu essere adibito come quarta camera da letto, con relativo bagno e terrazzo con vista panoramica sulla Rocca. Completano l'abitazione un garage doppio, e un bellissimo giardino con zona relax dove poter organizzare cene all'aperto con amici e parenti. LA SOLUZIONE SI COMPONE: PIANO TERRA: - Soggiorno - Cucina Abitabile - Bagno - Lavanderia -Garage PRIMO PIANO: - 3 camere da letto - 2 bagni e disbrigo - Terrazzo SECONDO PIANO: -Studio -Bagno -Terrazzo PREZZO: 485.000,00 ZONA COINVOLTE: Padova, Monselice, Montagnana, Este, Solesino, Sant'Elena, Abano Terme, Montegrotto Terme, Battaglia Terme, Baone, Conselve. GABETTI MONSELICE Via Cavallotti, 28 - 35043 Monselice T. +39 0429 1700 809 M. +39 345 035 3393 monselice@gabetti.it www.gabetti.it - SC9587841





