Valutazione immobiliare indipendente, accurata e gratuita
Casa indipendente in vendita a Monselice a 149.000 € (cod.6502a112)
Caasa non ha sufficienti informazioni per commentare la casa indipendente in vendita a Monselice - 6502a112.
Analisi immobiliare
I dati in posseso di Caasa per quest'immobile sono insufficienti, inaffidabili o contraddittori per proporre un'analisi attendibile.
Mercato immobiliare a Monselice
Per quanto riguarda più in generale la città di Monselice, sono presenti al momento più di 200 annunci per
case indipendenti in vendita (meno del 5% dell'intera provincia)
e il maggior numero di annunci per questa tipologia sono relativi alla zona di Ca' Oddo.
Possiamo inoltre considerare che in tutta la città negli ultimi 6 mesi, i prezzi per case indipendenti in vendita sono
sostanzialmente stabili (+0,65%).
NOVITÀ Il risultato che vedi dipende dai dati che siamo riusciti ad estrarre dall'annuncio: ottieni una stima più accuranta di questo immobile, inserendo dati più precisi.
N.B. L'Opinione di Caasa® è un servizio sperimentale realizzato tramite tecniche di Intelligenza Artificiale, fornito senza alcuna garanzia di correttezza e completezza. Leggi il disclaimer o segnalaci un problema.
IMMAGINI
IN SINTESI
PROPOSTO DA:
Gabetti monselice
DESCRIZIONE
da ristrutturare con posto auto con garage da ristrutturare
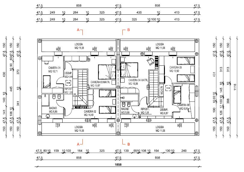
CASOLARE SUDDIVISO SU DUE ABITAZIONI A MONSELICE Posizionato a Monselice, in contesto tranquillo che garantisce un' ottima privacy, proponiamo la vendita di 2 porzioni di case bifamiliari da ristrutturare, 2 magazzini e un garage, da cui risultano 5 unità da riqualificare per un totale di volume dell'edificio esistente di 1467 mc. Grazie alla possibilità di accedere ai bonus sisma ancora in validità, ci da la possibilità di usufruire a pieno della metratura per la realizzazione di una nuova Bifamiliare. Il lotto su cui si sviluppa l'intero edificio è di mq 1.600. L'area, con progetto già approvato e valido fino a maggio 2028 e oneri già pagati per Euro 8.000 € , è ideale per la realizzazione di una bifamiliare in verticale. Prezzo: 149.000,00 € ZONA COINVOLTE: Padova, Monselice, Este, Solesino, Sant'Elena, Abano Terme, Montegrotto Terme, Battaglia Terme, Baone, Conselve. GABETTI MONSELICE Via Cavallotti, 28 - 35043 Monselice T. +39 0429 1700 809 M. +39 345 035 3393 monselice@gabetti.it www.gabetti.it





