Valutazione immobiliare indipendente, accurata e gratuita
Casa indipendente in vendita a Mestrino a 700.000 € (cod.65693b01)
Caasa non ha sufficienti informazioni per commentare la casa indipendente in vendita a Mestrino - 65693b01.
Analisi immobiliare
I dati in posseso di Caasa per quest'immobile sono insufficienti, inaffidabili o contraddittori per proporre un'analisi attendibile.
Mercato immobiliare a Mestrino
Per quanto riguarda più in generale il comune di Mestrino, sono presenti al momento più di cento annunci per
case indipendenti in vendita (meno del 5% dell'intera provincia)
e il maggior numero di annunci per questa tipologia sono relativi alla zona di Lissaro.
Relativamente alla dinamica dei prezzi, possiamo dire che negli ultimi 6 mesi i prezzi medi in tutto il comune per case indipendenti in vendita sono
in sostanziale calo (-6,79%).
NOVITÀ Il risultato che vedi dipende dai dati che siamo riusciti ad estrarre dall'annuncio: ottieni una stima più accuranta di questo immobile, inserendo dati più precisi.
N.B. L'Opinione di Caasa® è un servizio sperimentale realizzato tramite tecniche di Intelligenza Artificiale, fornito senza alcuna garanzia di correttezza e completezza. Leggi il disclaimer o segnalaci un problema.
IMMAGINI
IN SINTESI
PROPOSTO DA:
AGENZIA IMMOBILIARE VISENTIN
DESCRIZIONE
da ristrutturare con termocondizionamento da ristrutturare senza ascensore con riscaldamento autonomo di recente costruzione
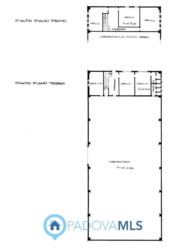
Immobile in esclusiva al Gruppo Padova MLS Interessante capannone singolo di forma rettangolare con piazzale per accesso di qualsiasi mezzo. L'immobile è dotato di uffici su due piani per circa 230 mq. e carro ponte nell'area laboratorio/deposito di circa 700 mq.. Si presenta in ottimo stato di conservazione. §Non necessita di particolari lavori se non quelli relativi alle specifiche attività. D. Perché vedo che la pubblicità di questo immobile è inserita anche da altre agenzie ? R. Semplice e trasparente: Questo è un immobile provvisto di regolare incarico da parte del venditore conferito a una sola agenzia del gruppo Padova Mls, che grazie all'esclusivo metodo di collaborazione consente, a tutte le agenzie aderenti, di ampliare e potenziare la visibilità dello stesso. Tale attività è debitamente regolamentata tra l'agenzia detentrice del mandato da parte del Venditore e le agenzie autorizzate a proporlo. D. Cosa cambia quindi per chi cerca casa? R. Grazie a questo servizio il cliente potrà ricercare senza limiti territoriali la casa desiderata con l'assistenza di un UNICO INTERLOCUTORE, che potrà aiutarlo e consigliarlo nella scelta tra TUTTI gli immobili disponibili nella rete di agenzie che si avvalgono di questo sistema di lavoro, riducendo i tempi di una affannosa ricerca e di continua richiesta di informazioni, e il venditore vede amplificata la promozione del suo immobile








