Valutazione immobiliare indipendente, accurata e gratuita
L'Opinione di Caasa® per l'appartamento in vendita a Limena a 365.000 € (cod.656154cf)
Secondo Caasa, per l'appartamento in vendita a Limena, la richiesta di 365.000 € è leggermente vantaggiosa rispetto agli annunci simili.
Analisi immobiliare
L'appartamento, situato nella zona OMI B1, è proposto in vendita (da Studio Palladio Di Ugolini Fabio) a
365.000 € per una
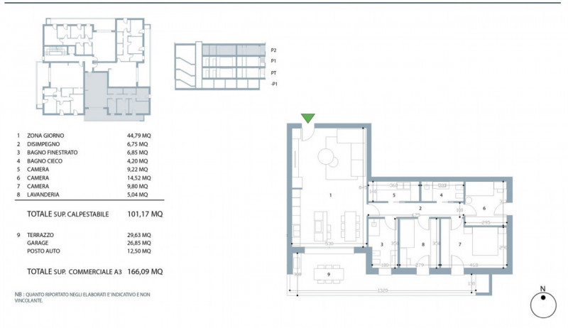
superficie commerciale di
166 m² e quindi ad un prezzo per metro quadrato pari a
2198 €/m²
.
Tale valore
è un po' più basso di quello stimato da Caasa per immobili in vendita simili per tipologia e caratteristiche, presenti nella stessa zona, che è compreso tra
2.431 €/m² e
2.628 €/m².
Vista la posizione dell'appartamento sono stati utilizzati come raffronto i valori medi nelle zone limitrofe . Caasa non è stata in grado di determinare la classe energetica, ma ad affinare la stima hanno contribuito però anche lo stato dell'immobile (di nuova costruzione) e la presenza di alcune caratteristiche significative come il garage o la disponibilità di una cantina. Per queste considerazioni i valori possibili per l'offerta costituiscono un intervallo relativamente ampio.
Mercato immobiliare a Limena
Per quanto riguarda più in generale il comune di Limena, sono presenti al momento più di 200 annunci per
appartamenti in vendita (meno del 5% dell'intera provincia) .
La dinamica dei prezzi in tutto il comune mostra che negli ultimi 6 mesi, i prezzi per appartamenti in vendita sono
in aumento (+3,59%).
NOVITÀ Il risultato che vedi dipende dai dati che siamo riusciti ad estrarre dall'annuncio: ottieni una stima più accuranta di questo immobile, inserendo dati più precisi.
N.B. L'Opinione di Caasa® è un servizio sperimentale realizzato tramite tecniche di Intelligenza Artificiale, fornito senza alcuna garanzia di correttezza e completezza. Leggi il disclaimer o segnalaci un problema.
IMMAGINI
IN SINTESI
DESCRIZIONE
di nuova costruzione con posto auto con garage di nuova costruzione con cantina con terrazza con angolo cottura senza ascensore
LIMENA, nuova edificazione in consegna per marzo 2027. Appartamento al secondo e ultimo piano. Ampia zona living di 44 mq.ca con cucina a vista, zona notte con 3 camere da letto, doppi servizi a comodo ripostiglio/lavanderia. Terrazzo di circa 29 mq. Ottime finiture di capitolato e soluzioni tecnologiche all'avanguardia. Fotovoltaico 3,5 kW






