Valutazione immobiliare indipendente, accurata e gratuita
Casa indipendente in vendita ad Este a 540.000 € (cod.658f9242)
Caasa non ha sufficienti informazioni per commentare la casa indipendente in vendita ad Este - 658f9242.
Analisi immobiliare
I dati in posseso di Caasa per quest'immobile sono insufficienti, inaffidabili o contraddittori per proporre un'analisi attendibile.
Mercato immobiliare ad Este
Per quanto riguarda più in generale la città di Este, sono presenti al momento più di 300 annunci per
case indipendenti in vendita (meno del 5% dell'intera provincia) .
Possiamo inoltre considerare che in tutta la città negli ultimi 6 mesi, i prezzi per case indipendenti in vendita sono
in leggero aumento (+2,36%).
NOVITÀ Il risultato che vedi dipende dai dati che siamo riusciti ad estrarre dall'annuncio: ottieni una stima più accuranta di questo immobile, inserendo dati più precisi.
N.B. L'Opinione di Caasa® è un servizio sperimentale realizzato tramite tecniche di Intelligenza Artificiale, fornito senza alcuna garanzia di correttezza e completezza. Leggi il disclaimer o segnalaci un problema.
IMMAGINI
IN SINTESI
PROPOSTO DA:
casa-per-casa-di-rossi-stefano
DESCRIZIONE
di nuova costruzione con posto auto con garage con termocondizionamento senza ascensore con riscaldamento autonomo di nuova costruzione
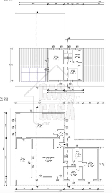
Rif. B236. Ultima porzione di bifamiliare disponibile in costruzione in una posizione ideale ad Este, a breve distanza dal centro. La casa verrà costruita utilizzando prodotti di alta qualità e dotata di un isolamento termico a cappotto, applicato sulla superficie esterna delle pareti, che aumenterà notevolmente il valore dell'isolamento e dell'inerzia termica, eliminando i ponti termici e proteggendo la struttura dell'edificio dalle intemperie. Classe energetica stimata A4. Disposta su due livelli, al piano terra cucina soggiorno in soluzione open space di circa 60 mq, una camera da letto matrimoniale, una camera da letto doppia ed un bagno. Al piano superiore possibilità di ricavare due camere da letto ed un bagno. Conclude la proprietà un portico di circa 33 mq dove poter passare momenti di relax con famiglia ed amici ed un garage di circa 57 mq. Per maggiori informazioni contattataci presso la nostra agenzia. L'agenzia Casa per casa è composta da un team di professionisti che con le competenze più specifiche vi accompagneranno nel percorso di compravendita di un immobile. La tranquillità di essere seguiti in ogni passo e di avere un riferimento per ogni problema vi affiancheranno fino al rogito. Inoltre l'agenzia è in grado di poter espletare pratiche come: valutazioni, preventivi, stime immobiliari, certificazioni energetiche, permute, successioni ect. CASA per CASA SRL via Principe Umberto, 48 35042 Este (PD) Cell 392 7227255 - 334 8191989- Tel. 0429 604143 Email: casapercasa@gmail.com www.casapercasa.net






