Valutazione immobiliare indipendente, accurata e gratuita
Capannone in vendita ad Este a 300.000 € (cod.65856ea3)
Caasa non ha sufficienti informazioni per commentare il capannone in vendita ad Este - 65856ea3.
Analisi immobiliare
I dati in posseso di Caasa per quest'immobile sono insufficienti, inaffidabili o contraddittori per proporre un'analisi attendibile.
Mercato immobiliare ad Este
Per quanto riguarda più in generale la città di Este, sono presenti al momento più di venti annunci per
capannoni in vendita (meno del 5% dell'intera provincia) .
Vedi altre informazioni direttamente su
Mercato-Immobiliare.info
NOVITÀ Il risultato che vedi dipende dai dati che siamo riusciti ad estrarre dall'annuncio: ottieni una stima più accuranta di questo immobile, inserendo dati più precisi.
N.B. L'Opinione di Caasa® è un servizio sperimentale realizzato tramite tecniche di Intelligenza Artificiale, fornito senza alcuna garanzia di correttezza e completezza. Leggi il disclaimer o segnalaci un problema.
IMMAGINI
IN SINTESI
DESCRIZIONE
di recente costruzione senza ascensore di recente costruzione
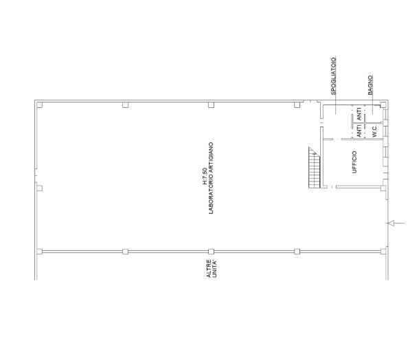
A Este, nella prima zona industriale, proponiamo un capannone artigianale di 600 mq, edificato nel 2003 e mantenuto in condizioni impeccabili. L'immobile si compone di un'ampia area produttiva, affiancata da un locale dedicato all'accoglienza clienti, due uffici ben distribuiti e due bagni. Gli spazi risultano funzionali, luminosi e pronti all'uso, ideali per attività artigianali o per chi cerca un capannone funzionale e subito operativo. All'esterno è presente un ampio parcheggio che garantisce ottima facilità di manovra anche per mezzi di grandi dimensioni, rendendo l'accesso semplice e agevole. La posizione, strategica e ben collegata, rappresenta un ulteriore valore aggiunto per chi cerca un capannone efficiente e di immagine







