Valutazione immobiliare indipendente, accurata e gratuita
Appartamento in vendita ad Este a 115.000 € (cod.6537729d)
Caasa non ha sufficienti informazioni per commentare l'appartamento in vendita ad Este - 6537729d.
Analisi immobiliare
I dati in posseso di Caasa per quest'immobile sono insufficienti, inaffidabili o contraddittori per proporre un'analisi attendibile.
Mercato immobiliare ad Este
Per quanto riguarda più in generale la città di Este, sono presenti al momento più di 200 annunci per
appartamenti in vendita (meno del 5% dell'intera provincia) .
Relativamente alla dinamica dei prezzi, possiamo dire che negli ultimi 6 mesi i prezzi medi in tutta la città per appartamenti in vendita sono
sostanzialmente stabili (+0,37%).
NOVITÀ Il risultato che vedi dipende dai dati che siamo riusciti ad estrarre dall'annuncio: ottieni una stima più accuranta di questo immobile, inserendo dati più precisi.
N.B. L'Opinione di Caasa® è un servizio sperimentale realizzato tramite tecniche di Intelligenza Artificiale, fornito senza alcuna garanzia di correttezza e completezza. Leggi il disclaimer o segnalaci un problema.
IMMAGINI
IN SINTESI
PROPOSTO DA:
AGENZIA IMMOBILIARE LA BASE
Via Cavour, 79, Este (PD)
Verificata da Caasa®
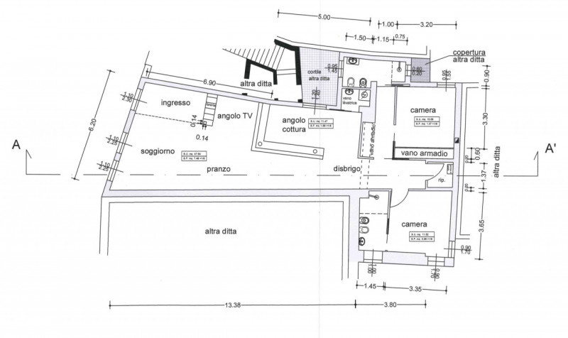
DESCRIZIONE
di recente ristrutturazione con cantina senza ascensore di recente ristrutturazione con angolo cottura
In esclusiva presso la nostra Agenzia, proponiamo in vendita un ampio appartamento trilocale situato al piano terra nel cuore del centro di Este. Con una superficie totale di 135 mq e un progetto già approvato per la ristrutturazione interna, questa proprietà offre l'opportunità unica di trasformare uno spazio commerciale in un'abitazione moderna e confortevole. L'appartamento è progettato per includere tre locali ben distribuiti: all'ingresso troverete una luminosa zona soggiorno-pranzo che si apre su un angolo cottura funzionale. La presenza della lavanderia aggiunge praticità alla vita quotidiana. Due bagni sono previsti, insieme a due vani guardaroba che offrono soluzioni ottimali per lo stoccaggio. La camera da letto matrimoniale dispone anche di un bagno esclusivo, mentre una seconda camera da letto completa l'offerta abitativa. Un piccolo ripostiglio rappresenta il tocco finale per garantire ulteriore spazio utile. Situata nel vivace centro storico di Este, questa proprietà è perfetta sia come residenza principale che come investimento immobiliare grazie alle sue caratteristiche distintive e versatili. L'area circostante è ricca di servizi essenziali tra cui negozi, ristoranti e mezzi pubblici, rendendo questo immobile ideale per chi desidera vivere immerso nella cultura locale senza rinunciare alla comodità. Non lasciatevi sfuggire quest'occasione imperdibile! Per ulteriori informazioni o per organizzare una visita non esitate a contattare la nostra agenzia

