Valutazione immobiliare indipendente, accurata e gratuita
Appartamento in vendita a Correzzola in zona Villa del Bosco a 147.000 € (cod.6575e862)
Caasa non ha sufficienti informazioni per commentare l'appartamento a Correzzola in zona Villa del Bosco - 6575e862.
Analisi immobiliare
I dati in posseso di Caasa per quest'immobile sono insufficienti, inaffidabili o contraddittori per proporre un'analisi attendibile.
Mercato immobiliare a Correzzola
Per quanto riguarda più in generale il comune di Correzzola, sono presenti al momento più di trenta annunci per
appartamenti in vendita (meno dell'1% dell'intera provincia)
e il maggior numero di annunci per questa tipologia sono relativi proprio alla zona di Villa del Bosco.
Possiamo inoltre considerare che in tutto il comune negli ultimi 6 mesi, i prezzi per appartamenti in vendita sono
in leggero aumento (+3,02%).
NOVITÀ Il risultato che vedi dipende dai dati che siamo riusciti ad estrarre dall'annuncio: ottieni una stima più accuranta di questo immobile, inserendo dati più precisi.
N.B. L'Opinione di Caasa® è un servizio sperimentale realizzato tramite tecniche di Intelligenza Artificiale, fornito senza alcuna garanzia di correttezza e completezza. Leggi il disclaimer o segnalaci un problema.
IMMAGINI
IN SINTESI
PROPOSTO DA:
TORREROSSA Immobiliare snc
DESCRIZIONE
di recente ristrutturazione con posto auto con garage con giardino da ristrutturare con termocondizionamento con cantina senza ascensore con riscaldamento autonomo con angolo cottura di recente ristrutturazione
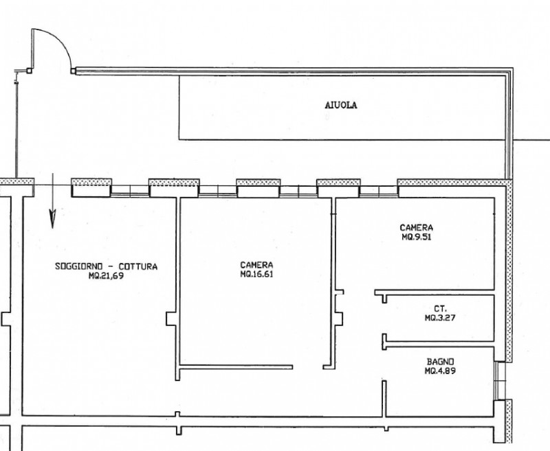
A Villa del Bosco proponiamo in vendita un appartamento al piano terra con entrata indipendente e scoperto esclusivo. L'appartamento è stato appena ristrutturato ed è inserito in palazzina di sole 5 unità con spese condominiali minime. Questa soluzione abitativa si trova a poca distanza dalla monselice mare e comoda ai servizi come farmacia, supermercato etc. Si accede all'appartamento dallo scoperto esclusivo, entrando troverete il soggiorno con angolo cottura e proseguendo troviamo il disimpegno, una camera matrimoniale, una cameretta, bagno e ripostiglio. Le dotazioni dell'immobile sono le seguenti: - tapparelle elettriche - cappotto di 16 cm; - serramenti con vetrocamera in PVC - impianto di riscaldamento e raffrescamento con pompa di colore - impianto fotovoltaico della potenza di 6,2 kW - n. 4 batterie di accumulo per oltre 20 KW - colonnina di ricarica per auto elettriche - pensilina con copertura retrattile - zanzariere L'immobile è dotato di garage. Se ti interessa approfondire e soprattutto vedere personalmente questo appartamento, non aspettare, contattaci subito e saremo felici di accompagnarti. Siamo a vostra disposizione per fornirvi ulteriori informazioni Potete scriverci a info@lindustriale.com chiamarci o inviarci un messaggio su whatsapp PAMELA cel. 3393568237 L'INDUSTRIALE Agenzia Immobiliare via Castello n. 49A 35028 Piove di Sacco PD tel. 0495841160 Vuoi vendere il tuo immobile? Non esitare a contattarci, daremo massima visibilità al tuo immobile, SENZA ALCUNA SPESA, inserendolo all'interno di tutte le nostre piattaforme: - Pubblicazione nei principali Portali Online e nei nostri canali Social - Inserimento all'interno del nostro sito internet www.lindustriale.com - Presenza nelle nostre Vetrine


