Valutazione immobiliare indipendente, accurata e gratuita
Capannone in vendita a Casale di Scodosia a 900.000 € (cod.6558d8fe)
Caasa non ha sufficienti informazioni per commentare il capannone in vendita a Casale di Scodosia - 6558d8fe.
Analisi immobiliare
I dati in posseso di Caasa per quest'immobile sono insufficienti, inaffidabili o contraddittori per proporre un'analisi attendibile.
Mercato immobiliare a Casale di Scodosia
Per quanto riguarda più in generale il comune di Casale di Scodosia, sono presenti al momento più di venti annunci per
capannoni in vendita (meno del 5% dell'intera provincia) .
Vedi altre informazioni direttamente su
Mercato-Immobiliare.info
NOVITÀ Il risultato che vedi dipende dai dati che siamo riusciti ad estrarre dall'annuncio: ottieni una stima più accuranta di questo immobile, inserendo dati più precisi.
N.B. L'Opinione di Caasa® è un servizio sperimentale realizzato tramite tecniche di Intelligenza Artificiale, fornito senza alcuna garanzia di correttezza e completezza. Leggi il disclaimer o segnalaci un problema.
IMMAGINI
IN SINTESI
PROPOSTO DA:
Immobiliare Principe Casa
Piazza Maggiore, 20, Este (PD)
Verificata da Caasa®
DESCRIZIONE
da ristrutturare da ristrutturare senza ascensore
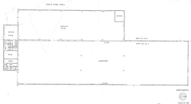
Rif. CAP07 - Vendesi complesso industriale composto da capannone principale di 1.970 mq, suddiviso in due unità rispettivamente di 1.400 mq e 570 mq, uffici di cca 230 mq, oltre a ulteriore capannone indipendente di circa 840 mq. Gli spazi si prestano a molteplici destinazioni d'uso, tra cui attività produttive, logistiche e di deposito, garantendo elevata flessibilità operativa. La suddivisione consente un utilizzo sia unitario che separato delle superfici, adattandosi alle diverse esigenze aziendali. La conformazione degli immobili permette una razionale organizzazione degli spazi interni e una gestione efficiente delle attività, rendendo la soluzione ideale per imprese che necessitano di ampie metrature e versatilità funzionale. ATTENZIONE: si comunica che l'indirizzo riportato nell'annuncio non corrisponde all'esatta collocazione dell'immobile, per informazioni sulla sua precisa localizzazione e per le planimetrie si prega di contattare l'agenzia. Immobiliare Principe Casa - Piazza Maggiore, 20 - Este (PD) oppure contattare il numero 0429/602835 - 335/1017033 indirizzo e-mail info@immobiliareprincipeumberto.it Per altri annunci visita il nostro sito www.principecasa.com


