Valutazione immobiliare indipendente, accurata e gratuita
Appartamento in affitto a Cadoneghe a 880 € mese (cod.65651b5f)
Caasa non ha sufficienti informazioni per commentare l'appartamento in affitto a Cadoneghe - 65651b5f.
Analisi immobiliare
I dati in posseso di Caasa per quest'immobile sono insufficienti, inaffidabili o contraddittori per proporre un'analisi attendibile.
Mercato immobiliare a Cadoneghe
Per quanto riguarda più in generale la città di Cadoneghe, sono presenti al momento più di dieci annunci per
appartamenti in affitto (meno dell'1% dell'intera provincia)
e il maggior numero di annunci per questa tipologia sono relativi alla zona di Mejaniga.
NOVITÀ Il risultato che vedi dipende dai dati che siamo riusciti ad estrarre dall'annuncio: ottieni una stima più accuranta di questo immobile, inserendo dati più precisi.
N.B. L'Opinione di Caasa® è un servizio sperimentale realizzato tramite tecniche di Intelligenza Artificiale, fornito senza alcuna garanzia di correttezza e completezza. Leggi il disclaimer o segnalaci un problema.
IMMAGINI
IN SINTESI
DESCRIZIONE
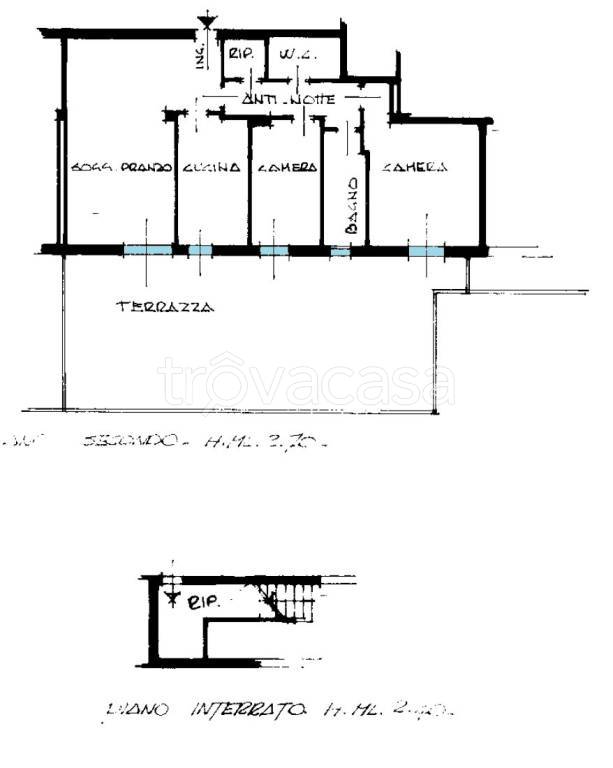
con posto auto con cantina con cucina abitabile con terrazza
in zona comoda a tutti i servizi affittiamo appartamento/attico di 85 m² con 70 m² di terrazza, libero da subito a Cadoneghe. Composto da: ingresso su ampio salone, cucina abitabile, 2 spaziose camere da letto, 2 bagni, ripostiglio, con garage e cant […]
