Valutazione immobiliare indipendente, accurata e gratuita
Casa indipendente in vendita a Brugine in zona Campagnola a 320.000 € (cod.6546a915)
Caasa non ha sufficienti informazioni per commentare la casa indipendente a Brugine in zona Campagnola - 6546a915.
Analisi immobiliare
I dati in posseso di Caasa per quest'immobile sono insufficienti, inaffidabili o contraddittori per proporre un'analisi attendibile.
Mercato immobiliare a Brugine
Per quanto riguarda più in generale il comune di Brugine, sono presenti al momento circa cento annunci per
case indipendenti in vendita (meno dell'1% dell'intera provincia)
e il maggior numero di annunci per questa tipologia sono relativi proprio alla zona di Campagnola.
Per quanto riguarda la richiesta media in zona Campagnola, dove sorge la casa indipendente, essa è pari a circa
2.000 €/m² per case indipendenti in vendita.
Relativamente alla dinamica dei prezzi, possiamo dire che negli ultimi 6 mesi i prezzi medi in tutto il comune per case indipendenti in vendita sono
sostanzialmente stabili (+0,51%).
NOVITÀ Il risultato che vedi dipende dai dati che siamo riusciti ad estrarre dall'annuncio: ottieni una stima più accuranta di questo immobile, inserendo dati più precisi.
N.B. L'Opinione di Caasa® è un servizio sperimentale realizzato tramite tecniche di Intelligenza Artificiale, fornito senza alcuna garanzia di correttezza e completezza. Leggi il disclaimer o segnalaci un problema.
IMMAGINI
IN SINTESI
PROPOSTO DA:
VENETO CASE S.R.L
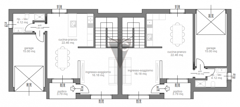
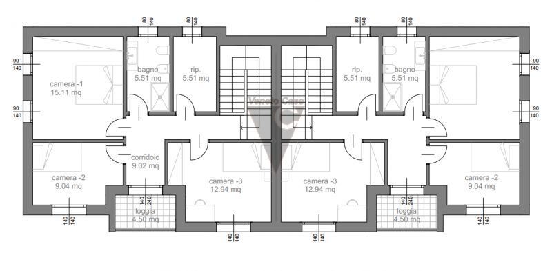
DESCRIZIONE
di recente costruzione con posto auto con garage con giardino con termocondizionamento di nuova costruzione con angolo cottura con cantina con terrazza senza ascensore di recente costruzione
In tranquillo contesto residenziale di recente realizzazione, proponiamo villetta a schiera su due livelli caratterizzata da ambienti luminosi, spazi ben distribuiti e dotazioni tecnologiche di ultima generazione. Al piano terra si sviluppa la zona giorno open-space con soggiorno e cucina-pranzo affacciati sul portico e sul giardino privato, ideale per pranzi e momenti all'aperto. Completano il livello un comodo ripostiglio/lavanderia, antibagno, e garage con accesso diretto all'abitazione. Al piano primo si trova la zona notte, composta da camera matrimoniale, camera doppia, camera singola, bagno finestrato, ripostiglio e loggia coperta. L'abitazione è progettata nel rispetto dei più moderni standard di efficienza e comfort abitativo: Impianto fotovoltaico per la produzione di energia elettrica Ventilazione meccanica controllata (VMC) per il ricambio e la qualità dell'aria interna Riscaldamento a pavimento per un comfort termico uniforme e consumi ridotti Tapparelle motorizzate Infissi ad alte prestazioni e ottimo isolamento termo-acustico Superficie commerciale: circa 130 mq CLAPESTABILI Garage privato collegato internamente Giardino di proprietà Classe energetica prevista: A4 Soluzione ideale per chi desidera una casa moderna, efficiente e sostenibile, in una zona residenziale tranquilla ma comoda ai principali servizi. Classe Energetica prevista A4 - - EURO 320.000 VENETO CASE - DOLO' Via Roma, 1 Tel: 049/4906465 - 351/3614118 dolo@venetocase.it www.venetocase.it






