Valutazione immobiliare indipendente, accurata e gratuita
L'Opinione di Caasa® per l'appartamento in vendita a Bovolenta a 125.000 € (cod.651e97e9)
Secondo Caasa, per l'appartamento in vendita a Bovolenta, la richiesta di 125.000 € è leggermente vantaggiosa rispetto agli annunci simili.
Analisi immobiliare
L'appartamento è proposto in vendita a
125.000 € per una
superficie commerciale di
100 m² e quindi ad un prezzo per metro quadrato pari a
1250 €/m²
.
Tale prezzo
è di poco inferiore a quello stimato da Caasa per immobili in vendita simili per tipologia, caratteristiche e classe energetica, che è compreso tra
1.293 €/m² e
1.414 €/m².
Sono stati utilizzati in raffronto i soli valori medi cittadini per appartamenti (da 820 €/m² a 1.355 €/m²) e per loft (da 1.170 €/m² a 1.970 €/m²), visto che non è stato possibile determinare in modo affidabile la posizione dell'immobile. All'elaborazione della stima ha però contribuito anche la classe energetica (E) oltre alla condizione dell'immobile (di recente ristrutturazione che però è in parte contraddittorio con la classe energetica) e alla presenza di alcune caratteristiche significative come la disponibilità di una cantina. In virtù di queste considerazioni i valori considerati accettabili per l'offerta costituiscono un intervallo comunque ampio.
Mercato immobiliare a Bovolenta
Per quanto riguarda più in generale il comune di Bovolenta, sono presenti al momento più di venti annunci per
appartamenti in vendita (meno dell'1% dell'intera provincia)
e il maggior numero di annunci per questa tipologia sono relativi alla zona di Fossaragna.
Relativamente alla dinamica dei prezzi, possiamo dire che negli ultimi 6 mesi i prezzi medi in tutto il comune per appartamenti in vendita sono
in forte calo (-12,09%).
NOVITÀ Il risultato che vedi dipende dai dati che siamo riusciti ad estrarre dall'annuncio: ottieni una stima più accuranta di questo immobile, inserendo dati più precisi.
N.B. L'Opinione di Caasa® è un servizio sperimentale realizzato tramite tecniche di Intelligenza Artificiale, fornito senza alcuna garanzia di correttezza e completezza. Leggi il disclaimer o segnalaci un problema.
IMMAGINI
IN SINTESI
DESCRIZIONE
di recente ristrutturazione di recente ristrutturazione con cantina
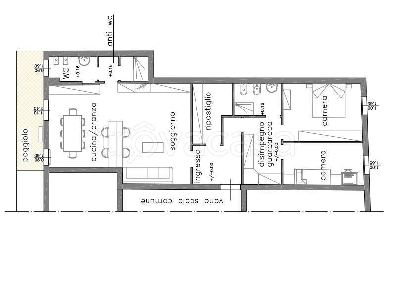
Non perdere l'occasione di vivere in un immobile completamente ristrutturato con finiture moderne e spazi studiati per il massimo comfort! Questo splendido appartamento, situato in una posizione privilegiata, è pronto per accogliere la tua nuova vita. La sua principale caratteristica è una zona giorno open space, un ampio e luminosissimo ambiente che unisce soggiorno e cucina in un'unica, grande metratura, ideale per cene con amici e momenti di relax in famiglia. L'ampio disimpegno funge da perfetto divisorio, garantendo la massima privacy tra la zona giorno e la zona notte, che comprende due camere da letto: una spaziosa matrimoniale e una comoda singola, perfetta come cameretta, studio o stanza per gli ospiti. L'appartamento offre inoltre doppi servizi moderni e funzionali, di cui uno dotato di finestra per un'ottima aerazione naturale, e un ampio ripostiglio che ti permetterà di organizzare al meglio lo spazio. Il fiore all'occhiello è senza dubbio il poggiolo servito dalla zona giorno, dove potrai goderti la colazione o un aperitivo serale con una magnifica e impagabile vista panoramica. Prezzo €: 125.000,00 Rif: BO-23 A.p.e.: E epi 361,34 kwh/m2 Il presente annuncio potrebbe contenere degli errori. La descrizione dei locali potrebbe non essere conforme. Ogni condizione di vendita, metratura, specifica o altro riguardante l'immobile o le condizioni di vendita vengono concordate in fase di appuntamento e comunque prima di una eventuale proposta di acquisto

