Valutazione immobiliare indipendente, accurata e gratuita
Casa indipendente a Borgo Veneto in zona Megliadino San Fidenzio a 93.000 € (cod.64f077ed)
Caasa non ha sufficienti informazioni per commentare la casa indipendente in zona Megliadino San Fidenzio - 64f077ed.
Analisi immobiliare
I dati in posseso di Caasa per quest'immobile sono insufficienti, inaffidabili o contraddittori per proporre un'analisi attendibile.
Mercato immobiliare a Borgo Veneto
Per quanto riguarda più in generale il comune di Borgo Veneto, sono presenti al momento più di cento annunci per
case indipendenti in vendita (meno del 5% dell'intera provincia)
e il maggior numero di annunci per questa tipologia sono relativi alla zona di Saletto, mentre nella zona di Megliadino San Fidenzio è presente un numero significativamente inferiore di annunci.
La richiesta media nella zona dove sorge la casa indipendente (Megliadino San Fidenzio) è pari a
1.170 €/m² che la rende la più economica del comune .
Relativamente alla dinamica dei prezzi, possiamo dire che negli ultimi 6 mesi i prezzi medi in tutto il comune per case indipendenti in vendita sono
in debole aumento (+1,53%).
NOVITÀ Il risultato che vedi dipende dai dati che siamo riusciti ad estrarre dall'annuncio: ottieni una stima più accuranta di questo immobile, inserendo dati più precisi.
N.B. L'Opinione di Caasa® è un servizio sperimentale realizzato tramite tecniche di Intelligenza Artificiale, fornito senza alcuna garanzia di correttezza e completezza. Leggi il disclaimer o segnalaci un problema.
IMMAGINI
IN SINTESI
PROPOSTO DA:
OBIETTIVO CASA
PIAZZA BEATA BEATRICE, 3, Este (PD)
Verificata da Caasa®
DESCRIZIONE
di recente costruzione con posto auto con giardino con garage con cantina senza ascensore con termocondizionamento con riscaldamento autonomo di recente costruzione
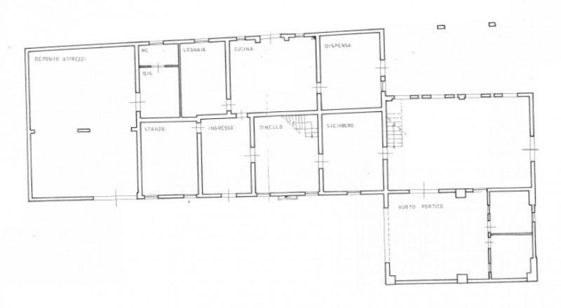
Proponiamo in vendita a Borgo Veneto, località Megliadino San Fidenzio, casale di campagna ubicato in una posizione strategica, e comodo a tutte le principali arterie stradali. L'abitazione, ancora al grezzo, è caratterizzata al piano terra da: ampia zona giorno, con ingresso, cucina, salotto, dispensa, tinello, bagno e altri locali di sgombero. Al piano primo si sviluppa la zona notte con tre camere matrimoniali, una singola e varie stanze adibite a ripostiglio e soffitta. A servizio dell'immobile una barchessa con stalla, porticato e un grande magazzino. Proposta interessante, sia per le ampie metrature interamente personalizzabili che per il vasto scoperto di proprietà di circa 2800 mq. Da vedere!!! Per informazioni contattare l'Agenzia OBIETTIVO CASA di Ospedaletto Euganeo Via Roma Est, 4 al numero 0429.670785 oppure a info@obiettivo-casa.info






