Valutazione immobiliare indipendente, accurata e gratuita

Appartamento in vendita a Bagnoli di Sopra a 38.250 € (cod.64e5decf)

Caasa non ha sufficienti informazioni per commentare l'appartamento in vendita a Bagnoli di Sopra - 64e5decf.

Analisi immobiliare
I dati in posseso di Caasa per quest'immobile sono insufficienti, inaffidabili o contraddittori per proporre un'analisi attendibile.
Mercato immobiliare a Bagnoli di Sopra
Per quanto riguarda più in generale il comune di Bagnoli di Sopra, sono presenti al momento più di trenta annunci per appartamenti in vendita (meno dell'1% dell'intera provincia) .

NOVITÀ Il risultato che vedi dipende dai dati che siamo riusciti ad estrarre dall'annuncio: ottieni una stima più accuranta di questo immobile, inserendo dati più precisi.

N.B. L'Opinione di Caasa® è un servizio sperimentale realizzato tramite tecniche di Intelligenza Artificiale, fornito senza alcuna garanzia di correttezza e completezza. Leggi il disclaimer o segnalaci un problema.

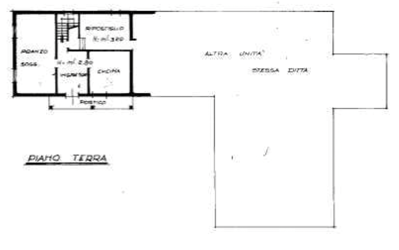
IMMAGINI

IN SINTESI

Prezzo:
38.250 €
Superficie:
179 m²
Prezzo al m²:
213 €/m²
Piano:
terra
Bagni:
1
Classe energetica:
A
Città:
Bagnoli di Sopra (PD)
Zona OMI:
R1 (ZONA RURALE)
Indirizzo:
Pubblicato:
lun 29 settembre 2025

PROPOSTO DA:

STUDIO CANOVA immobili & crediti

DESCRIZIONE

con giardino in asta giudiziaria con termocondizionamento con riscaldamento autonomo con cucina abitabile con balcone

NUOVA PROPOSTA IMMOBILE DISPONIBILE Appartamento sviluppato su due livelli e sito a Bagnoli di Sopra (PD) in via B. Cairoli, composto al piano terra da ingresso, soggiorno-pranzo, vano scala, cucina e una seconda cucina posta a un livello inferiore. Al piano primo si trovano quattro camere da letto, un'ulteriore stanza, un disimpegno e un bagno. La proprietà comprende anche un capannone per attività di lavorazione di materiali metallici con uffici e servizi annessi, per una superficie commerciale di circa 291,5 mq. L'immobile si trova in una zona tranquilla e ben servita, ideale per chi desidera spazi ampi e funzionali sia per uso abitativo che lavorativo. Per te la possibilità di avere un preventivo per il mutuo a condizioni vantaggiose con i nostri partner. Ulteriori dettagli, foto degli interni, planimetrie e altre info, se disponibili, saranno consultabili previo appuntamento nella sede di PADOVA con STEFANO inoltre ti informerà sulle possibilità di aggiudicarti questo affare. L'immobile pubblicato al momento è sottoposto a procedura di vendita legale; Gescom srl è specializzata nella ricerca e pianificazione di investimenti immobiliari secondo innovative strategie di acquisto. Contattaci subito potrai valutare assieme a un nostro tecnico canali distinti di acquisto dell'immobile, procedura di vendita diretta senza ricorrere all'asta (d.lgs. 149/2022) e ancora stralcio immobiliare. Le informazioni sopra riportate non sostituiscono l'avviso pubblicato dal Tribunale competente ne' l'integrale gestione da parte del delegato designato. Il testo e le specifiche indicate nella presente pagina sono generate automaticamente attraverso l'utilizzo di software e/o da A. I., Gescom srl invita a verificare le formazioni e i materiali multimediali sui canali ufficiali, declinando fin d'ora ogni responsabilità su eventuali errori o incongruenze. Gescom Italia srl leader negli stralci immobiliari e nella consulenza tecnico legale, non si occupa di attività di intermediazione imm. di cui alla legge 39/89. Cl. energ. d[…]

  • immobiliare.it
  • bachecacase.com
  • annuncio-casa.it
  • bancadellecase.it
  • ioaffitto.it
  • trovacasa.net
  • yescasa.it