Valutazione immobiliare indipendente, accurata e gratuita
L'Opinione di Caasa® per l'appartamento in vendita ad Albignasego a 298.000 € (cod.6502a067)
Secondo Caasa, per l'appartamento in vendita ad Albignasego, la richiesta di 298.000 € è equilibrata rispetto agli annunci simili.
Analisi immobiliare
L'appartamento, situato nella zona OMI B1, è proposto in vendita a
298.000 € per una
superficie commerciale di
100 m² e quindi ad un prezzo per metro quadrato pari a
2980 €/m²
.
Tale valore
è in linea con quello stimato da Caasa per immobili in vendita simili per tipologia, caratteristiche, classe energetica e localizzati nella stessa zona OMI, che è compreso tra
2.832 €/m² e
3.038 €/m².
La conoscenza con buona approssimazione della localizzazione dell'immobile ha consentito di utilizzare come raffronto i dati medi elaborati esattamente nella zona OMI di appertenenza (CAPOLUOGO). Inoltre, Caasa ha potuto affinare la stima anche con la conoscenza della classe energetica (A+) oltre che dello stato dell'immobile (di nuova costruzione). Per questi motivi i valori accettabili per l'offerta costituiscono un intervallo abbastanza limitato.
Mercato immobiliare ad Albignasego
Per quanto riguarda più in generale la città di Albignasego, sono presenti al momento quasi 500 annunci per
appartamenti in vendita (meno del 5% dell'intera provincia)
e il maggior numero di annunci per questa tipologia sono relativi alla zona di Lion.
La dinamica dei prezzi in tutta la città mostra che negli ultimi 6 mesi, i prezzi per appartamenti in vendita sono
in sostanziale aumento (+6,14%).
NOVITÀ Il risultato che vedi dipende dai dati che siamo riusciti ad estrarre dall'annuncio: ottieni una stima più accuranta di questo immobile, inserendo dati più precisi.
N.B. L'Opinione di Caasa® è un servizio sperimentale realizzato tramite tecniche di Intelligenza Artificiale, fornito senza alcuna garanzia di correttezza e completezza. Leggi il disclaimer o segnalaci un problema.
IMMAGINI
IN SINTESI
PROPOSTO DA:
RE/MAX Puntocase
DESCRIZIONE
di nuova costruzione di nuova costruzione con terrazza
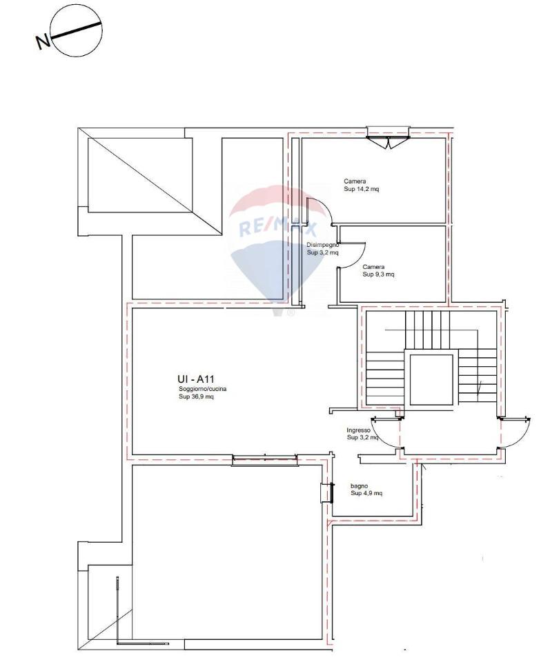
APPARTAMENTO UNITA' 11 Nel cuore di Albignasego, nella zona prestigiosa di Ferri, dove sorge una nuova realtà un attico di lusso in vendita. L'immobile, attualmente in costruzione e pronto per il 2025, rappresenta il perfetto connubio tra modernità e eleganza. L'attico Al suo interno, gode di spazi interni molto ampi e luminosi, grazie alla grande vetrata che permette l'ingresso di una luce naturale ineguagliabile. Ogni dettaglio è stato curato con la massima attenzione, a partire dalle finiture di pregio che conferiscono un tocco di eleganza e raffinatezza ad ogni ambiente. L'attico una volta che verrà completamente arredato dal fortunato proprietario, con mobili di design e materiali di alta qualità, potrà accogliere i nuovi proprietari in un'atmosfera di classe e comfort. Ma la vera perla di questa proprietà sono i suoi spazi esterni. Il terrazzo di 40 metri quadri offre uno spazio perfetto per godersi la vista panoramica sulla città e per organizzare cene e momenti di relax all'aria aperta. Inoltre, il soggiorno di 30 metri quadri con porta finestra per accedere al terrazzo, creando un'atmosfera unica e suggestiva. Il soggiorno ha lo spazio utile per poter posizionare un comodissimo divano angolare e godersi I momenti in famiglia guardando la tv, nel restante spazioabbiamo la fortuna di avere lo spazio per inserire la tavola per poter cenare tutti assieme con amici e parenti, avendo anche alle spalle una cucina su misura con parete attrezzata. Procedendo invece nella zona notte troviamo passando per un comodo disimpegno le due camere da letto, la prima matrimoniale, la seconda una singola, il bagno principale con doccia. Nel Residence sarà presente una “fitness area”, ad uso esclusivo dei condomini, Le ampie vetrate di quest'ultima godranno di una splendida vista verso lo spazio verde esterno e la confortevole zona relax all'aperto. La costruzione è prevista in bioedilizia, con tecnologie di massimo livello per l'ottenimento della e caratteristiche di risparmio energetico tali da poter essere paragona[…]

