Valutazione immobiliare indipendente, accurata e gratuita
Casa indipendente in vendita ad Albignasego a 325.000 € (cod.6501b27e)
Caasa non ha sufficienti informazioni per commentare la casa indipendente in vendita ad Albignasego - 6501b27e.
Analisi immobiliare
I dati in posseso di Caasa per quest'immobile sono insufficienti, inaffidabili o contraddittori per proporre un'analisi attendibile.
Mercato immobiliare ad Albignasego
Per quanto riguarda più in generale la città di Albignasego, sono presenti al momento quasi 500 annunci per
case indipendenti in vendita (meno del 5% dell'intera provincia)
e il maggior numero di annunci per questa tipologia sono relativi alla zona di Mandriola.
Possiamo inoltre considerare che in tutta la città negli ultimi 6 mesi, i prezzi per case indipendenti in vendita sono
in sostanziale aumento (+5,75%).
NOVITÀ Il risultato che vedi dipende dai dati che siamo riusciti ad estrarre dall'annuncio: ottieni una stima più accuranta di questo immobile, inserendo dati più precisi.
N.B. L'Opinione di Caasa® è un servizio sperimentale realizzato tramite tecniche di Intelligenza Artificiale, fornito senza alcuna garanzia di correttezza e completezza. Leggi il disclaimer o segnalaci un problema.
IMMAGINI
IN SINTESI
PROPOSTO DA:
GUIDA VALERIA
DESCRIZIONE
di nuova costruzione con posto auto con garage con giardino di nuova costruzione
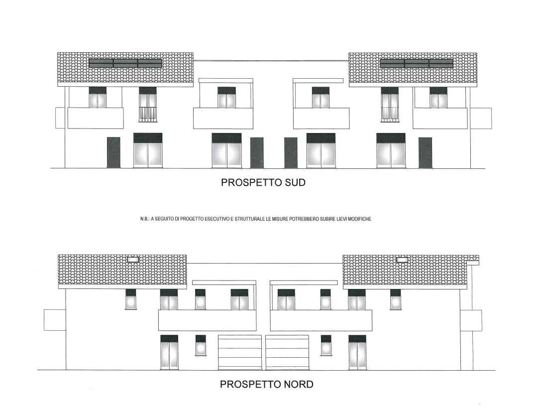
Descrizione Stampe e Operazioni Riferimento agenzia: K43 Nel comune di Albignasego, nella comoda e servita zona di San Tommaso, proponiamo in vendita porzione di centrale in fase di costruzione sviluppata su due livelli fuori terra. Al piano terra si accede tramite uno scoperto ed è composto da ingresso, zona giorno di 42 mq con cucina separabile ed ampie vetrate con accesso al giardino esclusivo, bagno lavanderia e garage collego. Al Piano primo troviamo tre camere da letto e due bagni finestrati, oltre alla piacevole logia che serve due camere. Completano centrale termica/servizio al piano terra ed il posto auto assegnato. Costruita con le ultimissime tecnologie per il risparmio energetico, fabbricato il cemento armato ed isotek, riscaldamento in pompa di calore con pannelli solari 3Kw, impianto di VMC, serramenti in pvc, ottima possibilità di scelta finiture. La consegna è prevista per primavera 2026. L'appuntamento presso l'immobile verrà fissato previo incontro conoscitivo in agenzia. Per motivi di privacy, l'indirizzo riportato nell'annuncio è puramente indicativo della zona, non è la posizione esatta dell'immobile


