Valutazione immobiliare indipendente, accurata e gratuita

Negozio in vendita ad Abano Terme a 523.500 € (cod.64bf7a34)

Caasa non ha sufficienti informazioni per commentare il negozio in vendita ad Abano Terme - 64bf7a34.

Analisi immobiliare
I dati in posseso di Caasa per quest'immobile sono insufficienti, inaffidabili o contraddittori per proporre un'analisi attendibile.
Mercato immobiliare ad Abano Terme
Per quanto riguarda più in generale la città di Abano Terme, sono presenti al momento più di cento annunci per negozi in vendita (meno del 5% dell'intera provincia) e il maggior numero di annunci per questa tipologia sono relativi alla zona di Monteortone.

Vedi altre informazioni direttamente su Mercato-Immobiliare.info

NOVITÀ Il risultato che vedi dipende dai dati che siamo riusciti ad estrarre dall'annuncio: ottieni una stima più accuranta di questo immobile, inserendo dati più precisi.

N.B. L'Opinione di Caasa® è un servizio sperimentale realizzato tramite tecniche di Intelligenza Artificiale, fornito senza alcuna garanzia di correttezza e completezza. Leggi il disclaimer o segnalaci un problema.

IMMAGINI

IN SINTESI

Prezzo:
523.500 €
Superficie:
462 m²
Prezzo al m²:
1133 €/m²
Piano:
n.d.
Bagni:
1
Classe energetica:
A
Città:
Abano Terme (PD)
Zona OMI:
D3 (ZONA PRODUTTIVA)
Indirizzo:
Pubblicato:
lun 11 agosto 2025

DESCRIZIONE

in asta giudiziaria

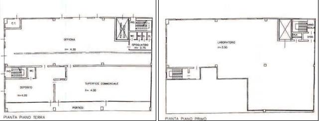
NUOVA PROPOSTA L 'immobile si trova nel comune di Abano Terme (PD) Via A. Brustolon.Unità facente parte di un edificio a destinazione mista, artigianale-commerciale. Si compone nel seguente: al piano terra officina dotata di zona spogliatoi, servizi […]

  • bilocale.it