Valutazione immobiliare indipendente, accurata e gratuita
L'Opinione di Caasa® per l'appartamento in vendita a San Vito di Cadore a 850.000 € (cod.658aa5be)
Secondo Caasa, per l'appartamento in vendita a San Vito di Cadore, la richiesta di 850.000 € è significativamente svantaggiosa rispetto agli annunci simili.
Analisi immobiliare
L'appartamento, situato nella zona OMI B1, è proposto in vendita a
850.000 € per una
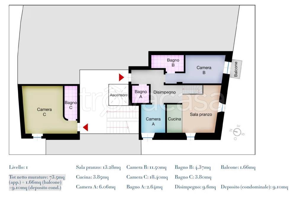
superficie commerciale di
110 m² e quindi ad un prezzo per metro quadrato pari a
7727 €/m²
.
Questo prezzo
è meno vantaggioso di quello stimato da Caasa per immobili in vendita simili per tipologia, caratteristiche, classe energetica e zona, che è compreso tra
5.692 €/m² e
6.287 €/m².
Data la posizione dell'appartamento si sono utilizzati in raffronto i valori medi nelle zone limitrofe . Ad affinare la stima ha contribuito anche la classe energetica (G) oltre alla conoscenza di alcune caratteristiche significative come il garage. Per queste considerazioni è possibile ottenere un intervallo di valori accettabili per l'offerta relativamente limitato.
Mercato immobiliare a San Vito di Cadore
Per quanto riguarda più in generale il comune di San Vito di Cadore, sono presenti al momento più di cento annunci per
appartamenti in vendita (meno del 10% dell'intera provincia) .
Possiamo inoltre considerare che in tutto il comune negli ultimi 6 mesi, i prezzi per appartamenti in vendita sono
in deciso aumento (+8,90%).
NOVITÀ Il risultato che vedi dipende dai dati che siamo riusciti ad estrarre dall'annuncio: ottieni una stima più accuranta di questo immobile, inserendo dati più precisi.
N.B. L'Opinione di Caasa® è un servizio sperimentale realizzato tramite tecniche di Intelligenza Artificiale, fornito senza alcuna garanzia di correttezza e completezza. Leggi il disclaimer o segnalaci un problema.
IMMAGINI
IN SINTESI
PROPOSTO DA:
INTERMEDIA PROGETTI DI ALESSIO GHIRIBELLI
DESCRIZIONE
con posto auto con garage con terrazza con balcone per vacanza
Appartamento arredato con Ingresso indipendente al piano terra su ampio e luminoso salotto di circa 25 mq doppiamente finestrato con esposizione sud e ovest. Una scala conduce al primo piano su cui un ampio disimpegno unisce i vari ambienti dell'appartamento. Sala da pranzo con cucina a vista doppiamente finestrata e con esposizione sud e ovest. Due camere e due bagni e balcone. Sullo stesso livello ma indipendentemente all'appartamento altra camera con bagno ideale per ospiti e amici in visita o da usare come studio.Garage 12 mq, deposito condominiale pratico per attrezzatura completano la proprietà. Ideale per abitare o come investimento da locare tutto l' anno per le prestigiose poste sciistiche ma anche per le passeggiate estive , la bellezza delle montagne e della natura. Compra, vai in vacanza, scia e affitta. Si valutano Permute. A soli 10 Min da Cortina il paese di San vito di Cadore offre soluzioni abitative immediatamente serviti da impianti sciistici, piste ciclabili, ristoranti, lago, supermercato e spa. L'energia della Natura circonda di bellezza dal cielo a terra questo luogo. Per chi ama la montagna con la neve in invero e l'escursione o l'arrampicata in estate. Nel piccolo paese si trova uno splendido Lago e il comprensorio sciistico di San Vito, con le sue nove piste di diversi livelli di difficoltà e uno Skipark, una piccola area sciistica con scuola di sci, ideale per tutti anche per famiglie e principianti. iI famoso comprensorio sciistico di Cortina è raggiungibile in auto o in autobus in pochi minuti. Inoltre una ricca offerta di tour in bici e MTB. Inoltre il “Sentiero dei Camosci” un lungo percorso che inizia in Alta Pusteria e attraversa le Dolomiti orientali fino a Longarone, passando anche per San Vito Cadore. Furnished apartment with a separate entrance on the ground floor leading to a spacious and bright living room of approximately 25 square meters with double windows and south and west exposure. A staircase leads to the first floor, where a large hallway connects the various[…]






