Valutazione immobiliare indipendente, accurata e gratuita

L'Opinione di Caasa® per la casa indipendente in vendita a Terni in zona Rivo a 280.000 € (cod.648a0675)

Secondo Caasa, per la casa indipendente in vendita a Terni in zona Rivo, la richiesta di 280.000 € è leggermente vantaggiosa rispetto agli annunci simili.

Analisi immobiliare
La casa indipendente, situata nella zona OMI C18, è proposta in vendita (da Affiliato Tecnocasa: TERNI NORD S.R.L.S) a 280.000 € per una superficie commerciale di 200 m² e quindi ad un prezzo per metro quadrato pari a 1400 €/m² .
Tale prezzo è leggeremente più conveniente di quello stimato da Caasa per immobili in vendita simili per tipologia, caratteristiche, classe energetica e localizzati nella stessa zona OMI, che è compreso tra 1.506 €/m² e 1.604 €/m². La conoscenza con buona approssimazione della localizzazione dell'immobile ha consentito di utilizzare come raffronto i dati medi elaborati esattamente nella zona OMI di appertenenza (BORGO RIVO, CAMPITELLO, GABELLETTA, CITTA` VERDE, CAMPOMAGGIORE, PONTE LE CAV...) per case indipendenti (da 925 €/m² a 1.430 €/m²) e per case semindipendenti (da 830 €/m² a 1.495 €/m²). Inoltre, Caasa ha potuto affinare la stima anche con la conoscenza della classe energetica (A+) oltre che dello stato dell'immobile (di nuova costruzione) e di alcune caratteristiche significative come il garage o la disponibilità di una cantina. Per questi motivi i valori accettabili per l'offerta costituiscono un intervallo abbastanza limitato.

Mercato immobiliare a Terni
Per quanto riguarda più in generale la città di Terni, sono presenti al momento oltre 500 annunci per case indipendenti in vendita (meno di un terzo dell'intera provincia) e il maggior numero di annunci per questa tipologia sono relativi alla zona di Centro Città, mentre la zona di Rivo risulta molto meno attiva considerando il numero di annunci presenti.
La richiesta media nella zona dove sorge la casa indipendente (Rivo) è pari a 1.270 €/m² e ne fa la più pregiata della città .
Relativamente alla dinamica dei prezzi, possiamo dire che negli ultimi 6 mesi i prezzi medi in tutta la città per case indipendenti in vendita sono in deciso aumento (+9,06%).

NOVITÀ Il risultato che vedi dipende dai dati che siamo riusciti ad estrarre dall'annuncio: ottieni una stima più accuranta di questo immobile, inserendo dati più precisi.

N.B. L'Opinione di Caasa® è un servizio sperimentale realizzato tramite tecniche di Intelligenza Artificiale, fornito senza alcuna garanzia di correttezza e completezza. Leggi il disclaimer o segnalaci un problema.

IMMAGINI

IN SINTESI

Prezzo:
280.000 €
Superficie:
200 m²
Prezzo al m²:
1400 €/m²
Piano:
n.d.
Bagni:
2
Classe energetica:
A+
Città:
Terni (TR)
Zona OMI:
C18 (BORGO RIVO, CAMPITELLO, GABELLETTA, CITTA` VERDE, CAMPOMAGGIORE, PONTE LE CAVE, COLLEROLLETTA, COLLELUNA)
Indirizzo:
Pubblicato:
gio 19 giugno 2025

PROPOSTO DA:

logo Affiliato Tecnocasa: TERNI NORD S.R.L.S

Affiliato Tecnocasa: TERNI NORD S.R.L.S

Via del rivo 63, Terni (TR)

Vai ai contatti

DESCRIZIONE

di nuova costruzione con cantina con posto auto con garage di recente ristrutturazione con giardino con cucina abitabile di nuova costruzione

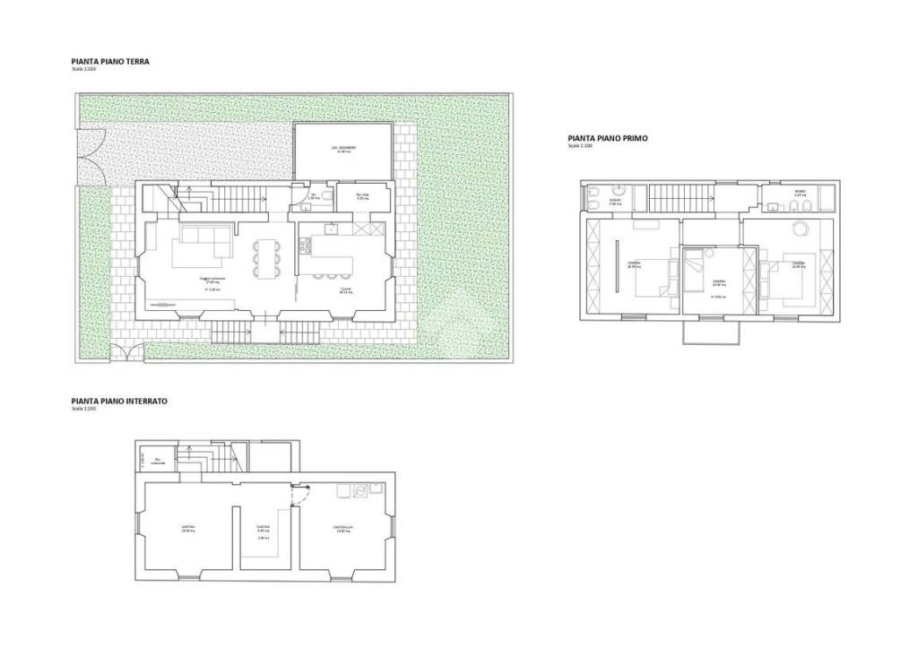
Nel cuore di Borgo Rivo, proponiamo in vendita casa indipendente, con giardino privato e garage. L'immobile verrà consegnato completamente ristrutturato, totale rifacimento di infissi, impianti, pavimenti, ecc. dotato di impianto fotovoltaico e pannelli solari. Il fabbricato si sviluppa su due livelli, al piano terra troviamo un ampio salone, una cucina abitabile, un bagno ed un ripostiglio. Al piano superiore tre camere da letto e due bagni. Direttamente dall'interno dell'abitabizione si potrà accedere al piano seminterrato dove troviamo una comoda cantina da adibire a taverna. Completano la proprietà lo spazio esterno privato che circonda la casa ed il garage. Totalmente personalizzabile

  • immobiliare.it
  • trovacasa.net