Valutazione immobiliare indipendente, accurata e gratuita
Appartamento in vendita ad Umbertide a 250.000 € (cod.659b4d75)
Caasa non ha sufficienti informazioni per commentare l'appartamento in vendita ad Umbertide - 659b4d75.
Analisi immobiliare
I dati in posseso di Caasa per quest'immobile sono insufficienti, inaffidabili o contraddittori per proporre un'analisi attendibile.
Mercato immobiliare ad Umbertide
Per quanto riguarda più in generale la città di Umbertide, sono presenti al momento più di 300 annunci per
appartamenti in vendita (meno del 5% dell'intera provincia)
e il maggior numero di annunci per questa tipologia sono relativi alla zona di Pierantonio.
Relativamente alla dinamica dei prezzi, possiamo dire che negli ultimi 6 mesi i prezzi medi in tutta la città per appartamenti in vendita sono
in leggero aumento (+2,55%).
NOVITÀ Il risultato che vedi dipende dai dati che siamo riusciti ad estrarre dall'annuncio: ottieni una stima più accuranta di questo immobile, inserendo dati più precisi.
N.B. L'Opinione di Caasa® è un servizio sperimentale realizzato tramite tecniche di Intelligenza Artificiale, fornito senza alcuna garanzia di correttezza e completezza. Leggi il disclaimer o segnalaci un problema.
IMMAGINI
IN SINTESI
PROPOSTO DA:
CORTESI IMMOBILIARE
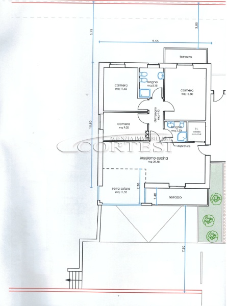
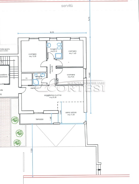
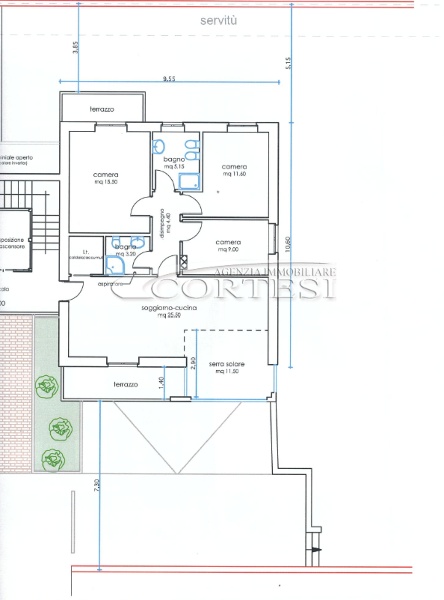
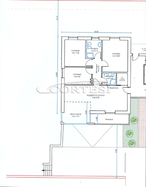
DESCRIZIONE
di nuova costruzione con posto auto con garage con giardino con cantina di nuova costruzione
NUOVA REALIZZAZIONE - UMBERTIDE ZONA PINETA Ultime Disponibilità - Appartamenti di Nuova Costruzione con Ingressi Indipendenti di mq 110 cad. composti da: soggiorno, cucina, tre camere, due bagni, terrazzi, giardino privato di mq 150 oltre a garage, cantina, posto auto scoperto privato. Possibilità di scegliere tra Piani Terra e Piani 1° - Classe A4 Possibilità di personalizzare Internamente. Per info: Cortesi Immobiliare Umbertide - chiama il numero verde gratuito 800 72 80 70


