Valutazione immobiliare indipendente, accurata e gratuita
Appartamento in vendita a Trevi in zona Matigge/Li Celli a 110.000 € (cod.656f79e2)
Caasa non ha sufficienti informazioni per commentare l'appartamento a Trevi in zona Matigge/Li Celli - 656f79e2.
Analisi immobiliare
I dati in posseso di Caasa per quest'immobile sono insufficienti, inaffidabili o contraddittori per proporre un'analisi attendibile.
Mercato immobiliare a Trevi
Per quanto riguarda più in generale il comune di Trevi, sono presenti al momento più di 150 annunci per
appartamenti in vendita (meno del 5% dell'intera provincia)
e il maggior numero di annunci per questa tipologia sono relativi proprio alla zona di Matigge/Li Celli.
Possiamo inoltre considerare che in tutto il comune negli ultimi 6 mesi, i prezzi per appartamenti in vendita sono
in sostanziale aumento (+6,21%).
NOVITÀ Il risultato che vedi dipende dai dati che siamo riusciti ad estrarre dall'annuncio: ottieni una stima più accuranta di questo immobile, inserendo dati più precisi.
N.B. L'Opinione di Caasa® è un servizio sperimentale realizzato tramite tecniche di Intelligenza Artificiale, fornito senza alcuna garanzia di correttezza e completezza. Leggi il disclaimer o segnalaci un problema.
IMMAGINI
IN SINTESI
PROPOSTO DA:
Centro Aste Firenze
DESCRIZIONE
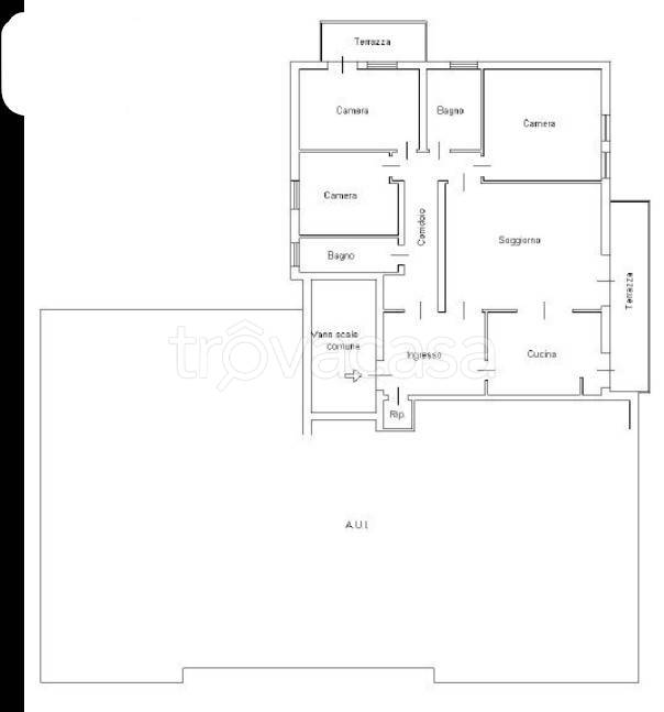
di recente costruzione in asta giudiziaria con posto auto con garage con giardino con cantina di recente costruzione
Asta altro a Trevi (PG) [SY606983] Via Narni, 06039 Matigge PG, Italia rge 36/2019 Lotto: 56819 Unità immobiliare destinata a civile abitazione con garage, sita in Trevi, Loc. Torre Matigge, Via Narni. Il garage è ubicato al piano primo sotto-strada, […]
