Valutazione immobiliare indipendente, accurata e gratuita
Casa indipendente in vendita a Trevi in zona Santa Maria in Valle a 170.000 € (cod.656c47f1)
Caasa non ha sufficienti informazioni per commentare la casa indipendente a Trevi Santa Maria in Valle - 656c47f1.
Analisi immobiliare
I dati in posseso di Caasa per quest'immobile sono insufficienti, inaffidabili o contraddittori per proporre un'analisi attendibile.
Mercato immobiliare a Trevi
Per quanto riguarda più in generale il comune di Trevi, sono presenti al momento più di cento annunci per
case indipendenti in vendita (meno del 5% dell'intera provincia)
e il maggior numero di annunci per questa tipologia sono relativi alla zona di Matigge/Li Celli, mentre nella zona di Santa Maria in Valle è presente un numero significativamente inferiore di annunci.
Relativamente alla dinamica dei prezzi, possiamo dire che negli ultimi 6 mesi i prezzi medi in tutto il comune per case indipendenti in vendita sono
in sostanziale aumento (+7,28%).
NOVITÀ Il risultato che vedi dipende dai dati che siamo riusciti ad estrarre dall'annuncio: ottieni una stima più accuranta di questo immobile, inserendo dati più precisi.
N.B. L'Opinione di Caasa® è un servizio sperimentale realizzato tramite tecniche di Intelligenza Artificiale, fornito senza alcuna garanzia di correttezza e completezza. Leggi il disclaimer o segnalaci un problema.
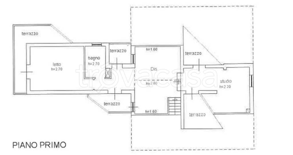
IMMAGINI
IN SINTESI
PROPOSTO DA:
Home Agency
DESCRIZIONE
di nuova costruzione in asta giudiziaria con posto auto con garage con terrazza con giardino di nuova costruzione con cantina con balcone
Acquisto Assistito in Asta Giudiziaria Per maggiori proposte visita il sito dell’agenzia: www.asteagency.com Verifica fattibilità d’acquisto in PRE-ASTA DATA ASTA : 16/04/2026 UBICAZIONE E DESCRIZIONE: Indirizzo: Loc. S. Maria in Valle - Via Tevere 5 […]
