Valutazione immobiliare indipendente, accurata e gratuita
Appartamento in vendita a Torgiano a 145.000 € (cod.654af1e8)
Caasa non ha sufficienti informazioni per commentare l'appartamento in vendita a Torgiano - 654af1e8.
Analisi immobiliare
I dati in posseso di Caasa per quest'immobile sono insufficienti, inaffidabili o contraddittori per proporre un'analisi attendibile.
Mercato immobiliare a Torgiano
Per quanto riguarda più in generale il comune di Torgiano, sono presenti al momento più di cento annunci per
appartamenti in vendita (meno dell'1% dell'intera provincia)
e il maggior numero di annunci per questa tipologia sono relativi alla zona di Brufa.
Per quanto riguarda la dinamica dei prezzi, negli ultimi 6 mesi i prezzi medi in tutto il comune per appartamenti in vendita sono
in leggera diminuzione (-2,47%).
NOVITÀ Il risultato che vedi dipende dai dati che siamo riusciti ad estrarre dall'annuncio: ottieni una stima più accuranta di questo immobile, inserendo dati più precisi.
N.B. L'Opinione di Caasa® è un servizio sperimentale realizzato tramite tecniche di Intelligenza Artificiale, fornito senza alcuna garanzia di correttezza e completezza. Leggi il disclaimer o segnalaci un problema.
IMMAGINI
IN SINTESI
PROPOSTO DA:
Il Rinascimento Immobiliare
Viale Spartaco Lavagnini 21, Firenze (FI)
Verificata da Caasa®
DESCRIZIONE
di recente costruzione con giardino con posto auto con garage di nuova costruzione con angolo cottura di recente costruzione
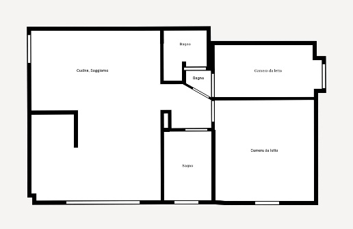
OPEN HOUSE, sabato 17 gennaio dalle 10.30 alle 12.30 In contesto residenziale tranquillo e ben servito, proponiamo in vendita un appartamento al piano terra con giardino privato, situato in una palazzina di recente costruzione (2014). L'immobile è composto da un luminoso soggiorno con angolo cottura, due camere da letto (una matrimoniale e una singola), due bagni e garage al piano seminterrato. Il giardino esclusivo, ideale per momenti di relax all'aperto o per chi ha animali domestici, rappresenta un valore aggiunto in termini di vivibilità e comfort. Soluzione perfetta per coppie, famiglie o come investimento. Contattaci per maggiori informazioni o per prenotare una visita! Classe Energetica: D

