Valutazione immobiliare indipendente, accurata e gratuita
Appartamento in vendita a Todi a 145.572 € (cod.6578f097)
Caasa non ha sufficienti informazioni per commentare l'appartamento in vendita a Todi - 6578f097.
Analisi immobiliare
I dati in posseso di Caasa per quest'immobile sono insufficienti, inaffidabili o contraddittori per proporre un'analisi attendibile.
Mercato immobiliare a Todi
Per quanto riguarda più in generale la città di Todi, sono presenti al momento quasi 500 annunci per
appartamenti in vendita (meno del 5% dell'intera provincia)
e il maggior numero di annunci per questa tipologia sono relativi alla zona di Pantalla.
La dinamica dei prezzi in tutta la città mostra che negli ultimi 6 mesi, i prezzi per appartamenti in vendita sono
in debole aumento (+1,83%).
NOVITÀ Il risultato che vedi dipende dai dati che siamo riusciti ad estrarre dall'annuncio: ottieni una stima più accuranta di questo immobile, inserendo dati più precisi.
N.B. L'Opinione di Caasa® è un servizio sperimentale realizzato tramite tecniche di Intelligenza Artificiale, fornito senza alcuna garanzia di correttezza e completezza. Leggi il disclaimer o segnalaci un problema.
IMMAGINI
IN SINTESI
PROPOSTO DA:
Centro Aste Firenze
DESCRIZIONE
di recente costruzione con cantina di recente costruzione in asta giudiziaria
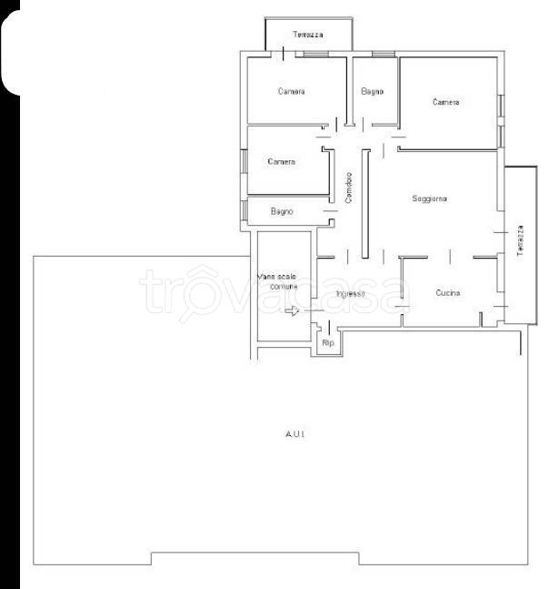
Asta altro a Todi (PG) [SY493816] Via Cesia O della Piana, 06059 Todi PG, Italia rge 2/2022 Lotto: 23019 Appartamento posto al piano secondo e terzo in pieno centro storico composto da ingresso, ampio salone, cucina, tinello, 4 camere, 2 bagni e soff […]
