Valutazione immobiliare indipendente, accurata e gratuita
Appartamento in vendita a Perugia in zona Ferro di Cavallo a 130.000 € (cod.652e4322)
Caasa non ha sufficienti informazioni per commentare l'appartamento a Perugia in zona Ferro di Cavallo - 652e4322.
Analisi immobiliare
I dati in posseso di Caasa per quest'immobile sono insufficienti, inaffidabili o contraddittori per proporre un'analisi attendibile.
Mercato immobiliare a Perugia
Per quanto riguarda più in generale la città di Perugia, sono presenti al momento ben oltre 3.000 annunci per
appartamenti in vendita (meno di un terzo dell'intera provincia)
e il maggior numero di annunci per questa tipologia sono relativi alla zona di Centro Città, mentre la zona di Ferro di Cavallo risulta molto meno attiva considerando il numero di annunci presenti.
La richiesta media nella zona dove sorge l'appartamento (Ferro di Cavallo) è pari a
1.220 €/m², non troppo distante dai valori medi cittadini per appartamenti in vendita.
Possiamo inoltre considerare che in tutta la città negli ultimi 6 mesi, i prezzi per appartamenti in vendita sono
in leggero aumento (+2,77%).
NOVITÀ Il risultato che vedi dipende dai dati che siamo riusciti ad estrarre dall'annuncio: ottieni una stima più accuranta di questo immobile, inserendo dati più precisi.
N.B. L'Opinione di Caasa® è un servizio sperimentale realizzato tramite tecniche di Intelligenza Artificiale, fornito senza alcuna garanzia di correttezza e completezza. Leggi il disclaimer o segnalaci un problema.
IMMAGINI
IN SINTESI
DESCRIZIONE
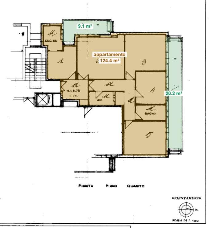
di nuova costruzione con posto auto con garage di nuova costruzione con ascensore con caminetto
Frimm Sinergie Immobiliare propone in vendita un appartamento situato nel cuore del quartiere di Ferro di Cavallo a Perugia, in un palazzo con ascensore che garantisce comfort e accessibilità. Caratteristiche: Appartamento di ampia metratura, abitabile, composto di ingresso, cucina con caminetto, soggiorno, tre camere da letto, due bagni di cui uno con finestra. Due ampi terrazzi panoramici, completa la proprietà un garage al primo piano sotto strada. Ottimo palazzo, contesto molto tranquillo con la possibilità di crearsi l'appartamento desiderato. Attualmente occupato da inquilino, libero dal 01/04/2026 Zona: - Il quartiere Ferro di Cavallo è una zona molto servita, con facile accesso a negozi, ristoranti, servizi e super strada. - La posizione è ideale per chi cerca una vita tranquilla e confortevole. Se sei interessato a questo appartamento o vuoi saperne di più, non esitare a contattarci. Saremo felici di fornirti ulteriori informazioni e di organizzare un sopralluogo. per info 339*7545669







