Valutazione immobiliare indipendente, accurata e gratuita
Appartamento in vendita a Passignano sul Trasimeno a 29.250 € (cod.655ed906)
Caasa non ha sufficienti informazioni per commentare l'appartamento in vendita a Passignano sul Trasimeno - 655ed906.
Analisi immobiliare
I dati in posseso di Caasa per quest'immobile sono insufficienti, inaffidabili o contraddittori per proporre un'analisi attendibile.
Mercato immobiliare a Passignano sul Trasimeno
Per quanto riguarda più in generale il comune di Passignano sul Trasimeno, sono presenti al momento più di 150 annunci per
appartamenti in vendita (meno del 5% dell'intera provincia) .
Possiamo inoltre considerare che in tutto il comune negli ultimi 6 mesi, i prezzi per appartamenti in vendita sono
sostanzialmente stabili (+0,68%).
NOVITÀ Il risultato che vedi dipende dai dati che siamo riusciti ad estrarre dall'annuncio: ottieni una stima più accuranta di questo immobile, inserendo dati più precisi.
N.B. L'Opinione di Caasa® è un servizio sperimentale realizzato tramite tecniche di Intelligenza Artificiale, fornito senza alcuna garanzia di correttezza e completezza. Leggi il disclaimer o segnalaci un problema.
IMMAGINI
IN SINTESI
PROPOSTO DA:
Centro Aste Firenze
DESCRIZIONE
di recente ristrutturazione di recente ristrutturazione con cantina di recente costruzione in asta giudiziaria
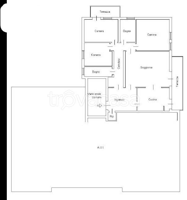
Asta altro a Passignano sul Trasimeno (PG) [SY605496] Piazzale del Popolo, 06065 Passignano sul Trasimeno PG, Italia rge 70/2024 L'unità immobiliare pari a circa 72mq divisa: zona giorno con cucina e soggiorno, due camere, un w.c. ed un disimpegno, c […]
