Valutazione immobiliare indipendente, accurata e gratuita
Appartamento in vendita a Marsciano a 65.988 € (cod.657270d6)
Caasa non ha sufficienti informazioni per commentare l'appartamento in vendita a Marsciano - 657270d6.
Analisi immobiliare
I dati in posseso di Caasa per quest'immobile sono insufficienti, inaffidabili o contraddittori per proporre un'analisi attendibile.
Mercato immobiliare a Marsciano
Per quanto riguarda più in generale la città di Marsciano, sono presenti al momento più di 300 annunci per
appartamenti in vendita (meno del 5% dell'intera provincia)
e il maggior numero di annunci per questa tipologia sono relativi alla zona di Cerqueto.
Possiamo inoltre considerare che in tutta la città negli ultimi 6 mesi, i prezzi per appartamenti in vendita sono
in sostanziale aumento (+5,47%).
NOVITÀ Il risultato che vedi dipende dai dati che siamo riusciti ad estrarre dall'annuncio: ottieni una stima più accuranta di questo immobile, inserendo dati più precisi.
N.B. L'Opinione di Caasa® è un servizio sperimentale realizzato tramite tecniche di Intelligenza Artificiale, fornito senza alcuna garanzia di correttezza e completezza. Leggi il disclaimer o segnalaci un problema.
IMMAGINI
IN SINTESI
PROPOSTO DA:
Centro Aste Firenze
DESCRIZIONE
di recente costruzione con terrazza con posto auto in asta giudiziaria con garage di recente costruzione con balcone
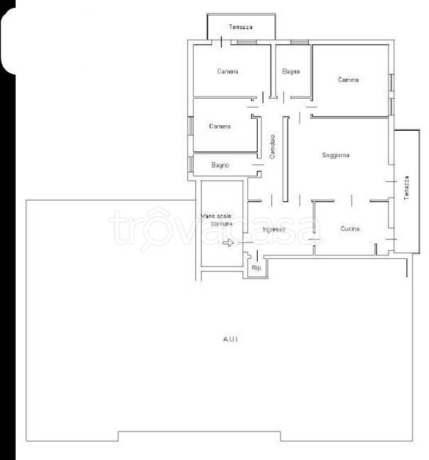
Asta altro a Marsciano (PG) [SY589528] Via Cesare Battisti, 06055 Marsciano PG, Italia rge 78/2024 Appartamento composto da quattro vani principali, ingresso con soggiorno con cucina adiacente, bagno, due camere da letto, bagno a servizio della zona […]
