Valutazione immobiliare indipendente, accurata e gratuita
L'Opinione di Caasa® per l'appartamento in vendita a Marsciano a 185.000 € (cod.65726eb5)
Secondo Caasa, per l'appartamento in vendita a Marsciano, la richiesta di 185.000 € è significativamente svantaggiosa rispetto agli annunci simili.
Analisi immobiliare
L'appartamento, situato nella zona OMI B1, è proposto in vendita (da Affiliato Tecnocasa: STUDIO SAN MARTINO TORGIANO S.R.L.) a
185.000 € per una
superficie commerciale di
90 m² e quindi ad un prezzo per metro quadrato pari a
2055 €/m²
.
Tale prezzo
è meno conveniente di quello stimato da Caasa per immobili in vendita simili per tipologia, caratteristiche, classe energetica e zona, che è compreso tra
1.375 €/m² e
1.546 €/m².
Presa in considerazione la posizione dell'appartamento si sono utilizzati in raffronto i valori medi nelle zone limitrofe . Ad affinare la stima ha contribuito anche la classe energetica (A+) oltre alla conoscenza dello stato dell'immobile (di nuova costruzione) e di alcune caratteristiche significative come il garage. Per questi motivi i valori accettabili per l'offerta costituiscono un intervallo relativamente limitato.
Mercato immobiliare a Marsciano
Per quanto riguarda più in generale la città di Marsciano, sono presenti al momento più di 300 annunci per
appartamenti in vendita (meno del 5% dell'intera provincia)
e il maggior numero di annunci per questa tipologia sono relativi alla zona di Cerqueto.
Relativamente alla dinamica dei prezzi, possiamo dire che negli ultimi 6 mesi i prezzi medi in tutta la città per appartamenti in vendita sono
in aumento (+4,89%).
NOVITÀ Il risultato che vedi dipende dai dati che siamo riusciti ad estrarre dall'annuncio: ottieni una stima più accuranta di questo immobile, inserendo dati più precisi.
N.B. L'Opinione di Caasa® è un servizio sperimentale realizzato tramite tecniche di Intelligenza Artificiale, fornito senza alcuna garanzia di correttezza e completezza. Leggi il disclaimer o segnalaci un problema.
IMMAGINI
IN SINTESI
PROPOSTO DA:
Affiliato Tecnocasa: STUDIO SAN MARTINO TORGIANO S.R.L.
Via Deruta 102, Perugia (PG)
DESCRIZIONE
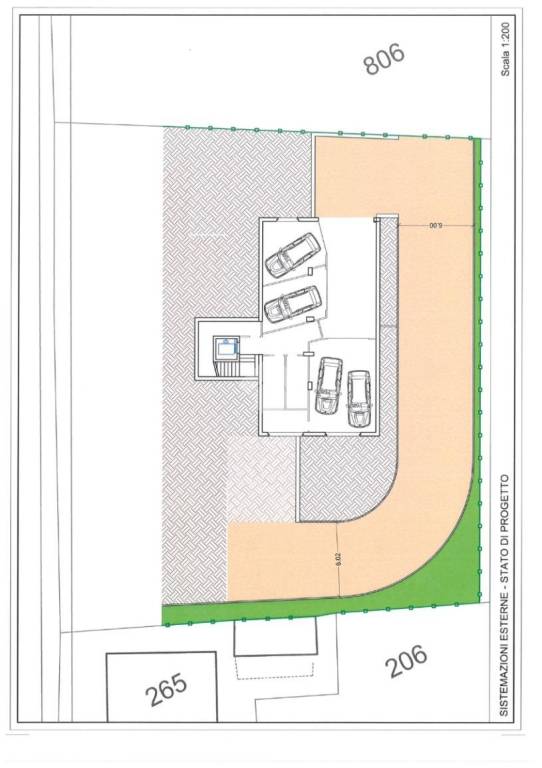
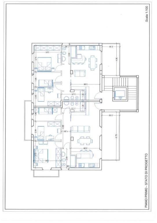
di nuova costruzione con terrazza con posto auto con garage di nuova costruzione
Marsciano: proponiamo un appartamento di nuova costruzione, disponibile per la vendita. Situato al piano medio di un edificio moderno, l'immobile si estende su una superficie di 90 mq, offrendo spazi ben distribuiti e funzionali. La proprietà si compone di quattro locali, progettati per garantire comfort e praticità. La zona giorno è luminosa e accogliente, ideale per momenti di relax e convivialità. Le camere da letto sono spaziose, pensate per assicurare un riposo ottimale. La cucina, moderna e ben attrezzata, si presta a soddisfare le esigenze culinarie più diverse. L'edificio, in fase di completamento nel 2026, rispecchia standard elevati di qualità e design. La posizione strategica consente di godere della tranquillità del contesto residenziale, senza rinunciare alla vicinanza dei principali servizi e collegamenti. Una soluzione abitativa che coniuga eleganza e funzionalità. L'appartamento è composto da zona giorno, cucina a vista, tre camere da letto, due bagni e garage


