Valutazione immobiliare indipendente, accurata e gratuita

Appartamento in vendita a Deruta in zona Ponte Nuovo (cod.64e2dc65)

Caasa non ha sufficienti informazioni per commentare l'appartamento a Deruta in zona Ponte Nuovo - 64e2dc65.

Analisi immobiliare
I dati in posseso di Caasa per quest'immobile sono insufficienti, inaffidabili o contraddittori per proporre un'analisi attendibile.
Mercato immobiliare a Deruta
Per quanto riguarda più in generale il comune di Deruta, sono presenti al momento più di 150 annunci per appartamenti in vendita (meno del 5% dell'intera provincia) e il maggior numero di annunci per questa tipologia sono relativi alla zona di Sant'Angelo di Celle, mentre nella zona di Ponte Nuovo è presente un numero significativamente inferiore di annunci.
La richiesta media nella zona dove sorge l'appartamento (Ponte Nuovo) è pari a 1.065 €/m², molto vicina ai valori della zona Sant'Angelo di Celle che sono i più alti del comune .
Relativamente alla dinamica dei prezzi, possiamo dire che negli ultimi 6 mesi i prezzi medi in tutto il comune per appartamenti in vendita sono in forte aumento (+11,21%).
Invece i prezzi per la zona di sono in sostanziale aumento.

NOVITÀ Il risultato che vedi dipende dai dati che siamo riusciti ad estrarre dall'annuncio: ottieni una stima più accuranta di questo immobile, inserendo dati più precisi.

N.B. L'Opinione di Caasa® è un servizio sperimentale realizzato tramite tecniche di Intelligenza Artificiale, fornito senza alcuna garanzia di correttezza e completezza. Leggi il disclaimer o segnalaci un problema.

IMMAGINI

IN SINTESI

Prezzo:
nd
Superficie:
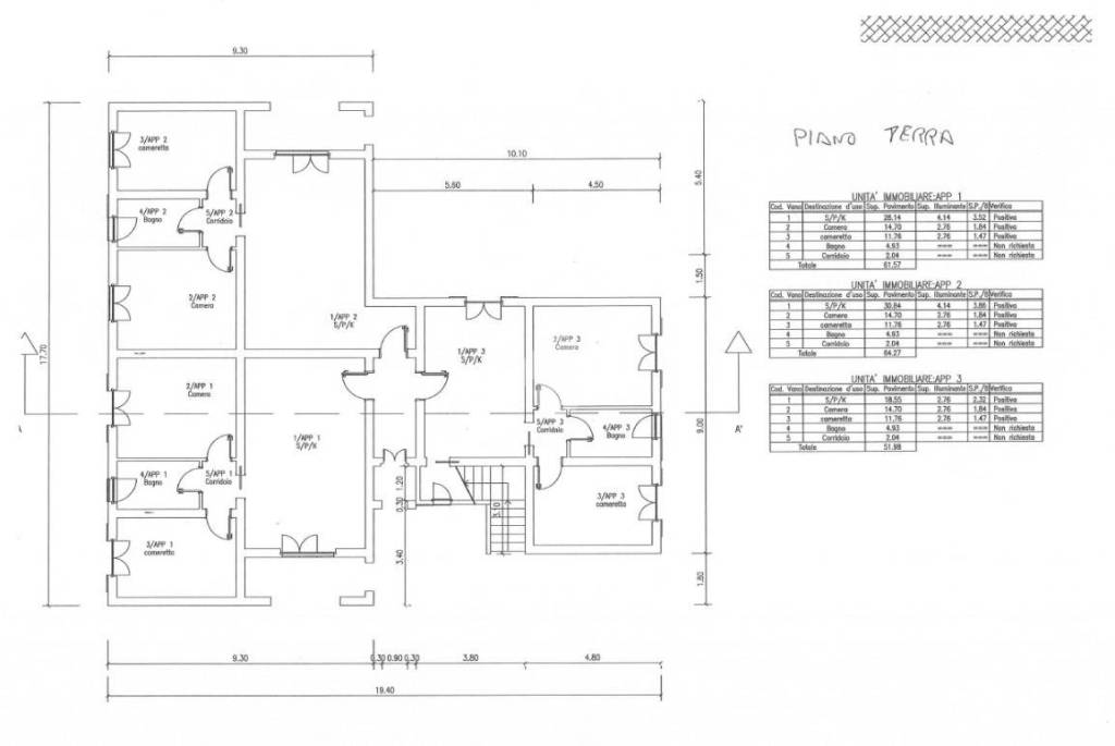
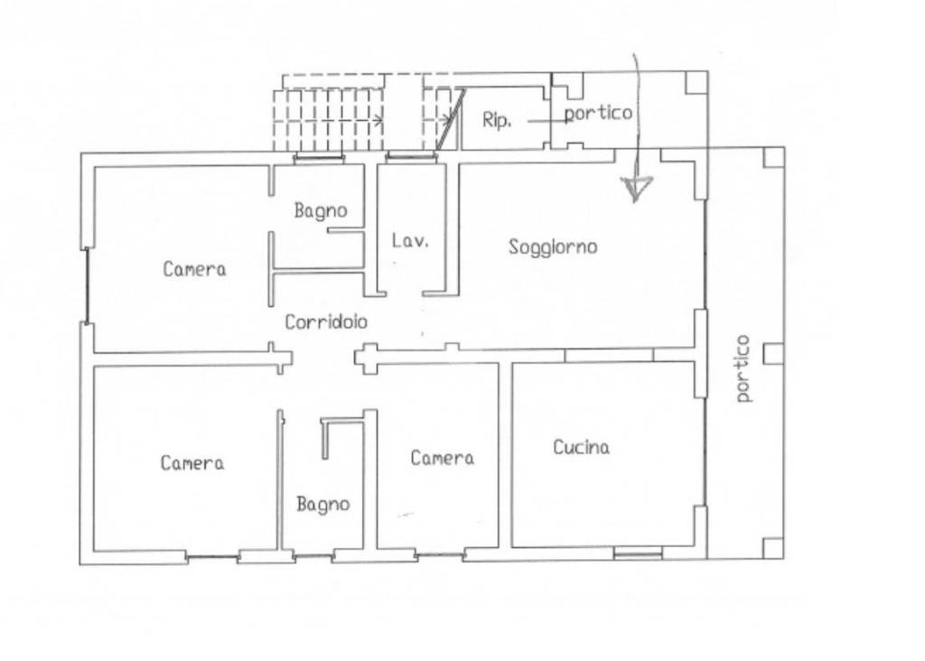
125 m²
Piano:
terra
Bagni:
2
Classe energetica:
A+
Città:
Deruta (PG)
Zona OMI:
D3 (PONTENUOVO - ZONA A OVEST DELLA VIA TIBERINA)
Indirizzo:
Pubblicato:
mar 23 settembre 2025

PROPOSTO DA:

logo Affiliato Tecnocasa: STUDIO SAN MARTINO TORGIANO S.R.L.

Affiliato Tecnocasa: STUDIO SAN MARTINO TORGIANO S.R.L.

Via Deruta 102, Perugia (PG)

Vai ai contatti

DESCRIZIONE

di nuova costruzione con posto auto con garage con cucina abitabile di nuova costruzione

Deruta: proponiamo un immobile di nuova costruzione, pronto nel 2026, che unisce comfort e modernità. Situato al piano terra, questo appartamento signorile si estende su 125 mq, offrendo ampi spazi distribuiti su quattro locali. La proprietà si distingue per la sua efficienza energetica, essendo certificata in Classe A4, garantendo così un notevole risparmio sui consumi. L' immobile si compone di zona giorno, cucina abitabile, tre camere da letto, due bagni ed un comodo garage.La posizione è uno dei suoi punti di forza: immerso in un contesto panoramico esclusivo, l'immobile offre una vista incantevole e si trova a soli cinque minuti dallo svincolo della Super Strada, facilitando gli spostamenti. Inoltre, la vicinanza al nuovo Centro Commerciale CONAD aggiunge ulteriore comodità, rendendo facilmente accessibili servizi e negozi. Questa soluzione abitativa rappresenta un'opportunità ideale per chi cerca un ambiente raffinato e ben collegato. Possibilita' di personalizzare interni. Residence esclusivo con piscina condominiale. CANTIERE IN ESCLUSIVA

  • immobiliare.it
  • trovacasa.net