Valutazione immobiliare indipendente, accurata e gratuita
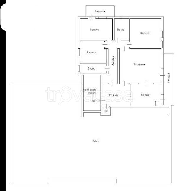
Casa indipendente in vendita a Citerna in zona Pistrino (cod.6581d70c)
Caasa non ha sufficienti informazioni per commentare la casa indipendente a Citerna in zona Pistrino - 6581d70c.
Analisi immobiliare
I dati in posseso di Caasa per quest'immobile sono insufficienti, inaffidabili o contraddittori per proporre un'analisi attendibile.
Mercato immobiliare a Citerna
Per quanto riguarda più in generale il comune di Citerna, sono presenti al momento più di cinquanta annunci per
case indipendenti in vendita (meno dell'1% dell'intera provincia)
e il maggior numero di annunci per questa tipologia sono relativi proprio alla zona di Pistrino.
Per quanto riguarda la richiesta media in zona Pistrino, dove sorge la casa indipendente, essa è pari a circa
815 €/m² per case indipendenti in vendita.
Per quanto riguarda la dinamica dei prezzi, negli ultimi 6 mesi i prezzi medi in tutto il comune per case indipendenti in vendita sono
in debole aumento (+1,36%).
Invece i prezzi per la zona di sono sostanzialmente stabili.
NOVITÀ Il risultato che vedi dipende dai dati che siamo riusciti ad estrarre dall'annuncio: ottieni una stima più accuranta di questo immobile, inserendo dati più precisi.
N.B. L'Opinione di Caasa® è un servizio sperimentale realizzato tramite tecniche di Intelligenza Artificiale, fornito senza alcuna garanzia di correttezza e completezza. Leggi il disclaimer o segnalaci un problema.
IMMAGINI
IN SINTESI
PROPOSTO DA:
Centro Aste Firenze
DESCRIZIONE
di recente costruzione in asta giudiziaria di recente costruzione
Asta altro a Citerna (PG) [SY590733] 06010 Pistrino PG, Italia rge 51/2020 Lotto: 7 Terreno agricolo sito in Vocabolo Quartiere, Località Pistrino, della superficie di circa 5435 mq oltre a tettoia di circa 240 mq PER MAGGIORI INFORMAZIONI PUOI CONTA […]
