Valutazione immobiliare indipendente, accurata e gratuita
Casa indipendente in vendita a Castiglione del Lago in zona Porto (cod.64b23411)
Caasa non ha sufficienti informazioni per commentare la casa indipendente a Castiglione del Lago Porto - 64b23411.
Analisi immobiliare
I dati in posseso di Caasa per quest'immobile sono insufficienti, inaffidabili o contraddittori per proporre un'analisi attendibile.
Mercato immobiliare a Castiglione del Lago
Per quanto riguarda più in generale la città di Castiglione del Lago, sono presenti al momento ben oltre mille annunci per
case indipendenti in vendita (quasi il 20% dell'intera provincia)
e il maggior numero di annunci per questa tipologia sono relativi alla zona di Piana, mentre la zona di Porto risulta molto meno attiva considerando il numero di annunci presenti.
La richiesta media nella zona dove sorge la casa indipendente (Porto) è pari a
1.060 €/m², molto vicina ai valori della zona Piana che sono i più alti della città .
Relativamente alla dinamica dei prezzi, possiamo dire che negli ultimi 6 mesi i prezzi medi in tutta la città per case indipendenti in vendita sono
in aumento (+3,53%).
NOVITÀ Il risultato che vedi dipende dai dati che siamo riusciti ad estrarre dall'annuncio: ottieni una stima più accuranta di questo immobile, inserendo dati più precisi.
N.B. L'Opinione di Caasa® è un servizio sperimentale realizzato tramite tecniche di Intelligenza Artificiale, fornito senza alcuna garanzia di correttezza e completezza. Leggi il disclaimer o segnalaci un problema.
IMMAGINI
IN SINTESI
PROPOSTO DA:
DIAMANTE GROUP
Via Firenze, 11, Castiglione del Lago (PG)
Verificata da Caasa®
DESCRIZIONE
con giardino con posto auto con garage con angolo cottura
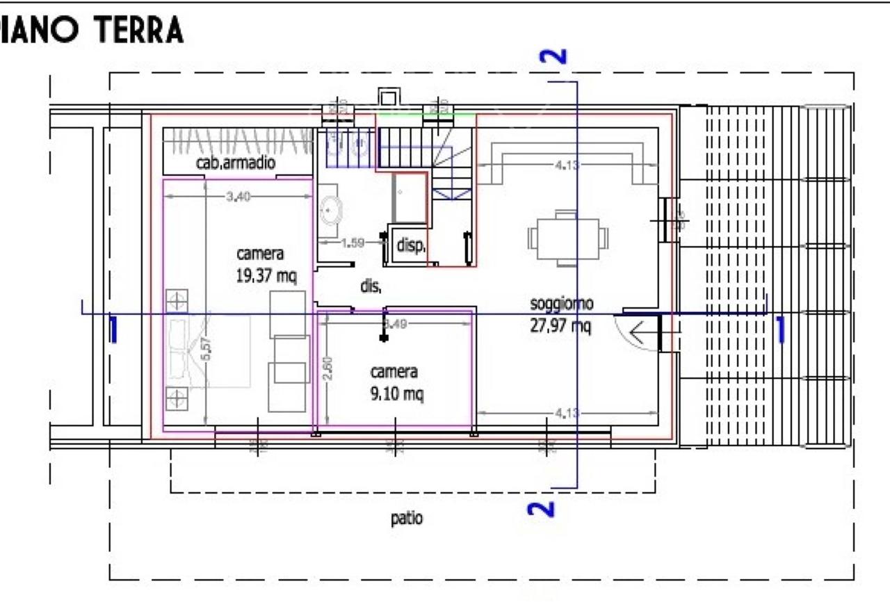
CASTIGLIONE DEL LAGO (PG), Porto: Lotto di terreno edificabile di 4630 mq con progetto approvato per la costruzione di una villetta di circa 120 mq con possibilità di ampliamento.Il progetto attuale prevede un garage doppio a piano interrato ed abita […]
