N.B. Tutti le informazioni immobiliari sono fornite senza alcuna garanzia. Leggi il disclaimer.
Negozi o uffici in vendita a Gemona del Friuli - pg. 3 di 3
MODIFICA QUESTA RICERCAVilla in vendita a Gemona Del Friuli PREMIUM
- prezzo medio casa indipendente in zona OMI B1 : 893 €/m²
- prezzo medio appartamento in zona OMI B1 : 1053 €/m²
Laboratorio in vendita a Gemona, Gemona del Friuli
negozio 74.990 €
RIFERIMENTO:4446385 Via Vegliato, 10, 33013 Gemona del Friuli Udine LOTTO N.2IndirizzoVia Vegliato, 10GEMONA DEL FRIULI(UD)Fabbricato ad uso artigianale della superficie commerciale di 128,50 mq Gemona del Friuli (UD)foglio 17 particella 760 sub. 7, categoria D/7, rendita 1.530,00 Euro, piano: T, con l'u […]
LEGGI ANCORA
Vendesi negozio a Gemona, Gemona del Friuli
negozio 59.690 €
Riferimento: 4459801 Via Dante Alighieri, 243, 33013 Gemona del Friuli Udine Negozio della superficie commerciale di 150,46 mq. Locale commerciale al piano terra e seminterrato, facente parte di un fabbricato in condominio, costituito da cantine ed una rimessa al piano seminterrato, un locale commerciale […]
LEGGI ANCORA
Ufficio in vendita a Gemona, Gemona del Friuli
ufficio 62.476 €
Via Dante Alighieri, Gemona del Friuli (Udine) - Ufficio della superficie commerciale di 192,36 mq, in Gemona del Friuli, via Dante Alighieri n. 241 - VUOI ACQUISTARE QUESTO IMMOBILE ALL'ASTA? PRENOTA ORA LA TUA CONSULENZA GRATUITA! Rispondi subito a questo annuncio per ricevere il link e fissare la tua […]
LEGGI ANCORA
- prezzo medio appartamento in zona OMI B1 : 1053 €/m²
- prezzo medio appartamento a Gemona del Friuli : 940 €/m²
Negozio in vendita a Gemona, Gemona del Friuli
negozio 59.698 €
Via Dante Alighieri, Gemona del Friuli (Udine) - Negozio della superficie commerciale di 150,46 mq, in Gemona del Friuli, via Dante Alighieri n. 243 - VUOI ACQUISTARE QUESTO IMMOBILE ALL'ASTA? PRENOTA ORA LA TUA CONSULENZA GRATUITA! Rispondi subito a questo annuncio per ricevere il link e fissare la tua […]
LEGGI ANCORA
Laboratorio in vendita a Gemona, Gemona del Friuli
negozio 75.000 €
NUOVA PROPOSTA IMMOBILE LIBERO Immobile a Gemona del Friuli (UD) in via Vegliato. Edificio ad uso artigianale della superficie commerciale di 128,50 metri quadri situato a Gemona del Friuli (UD) in via Vegliato. Unità deposito macchinari e materiale edile, composto da un corpo uso uffici di due vani e se […]
LEGGI ANCORA
Immobile in vendita a Gemona del Friuli(UD PREMIUM
Proposto da:
Laboratorio in vendita a Gemona, Gemona del Friuli
negozio 75.000 €
Via Vegliato, Gemona del Friuli (Udine) - Fabbricato ad uso artigianale della superficie commerciale di 128,50 mq, in Gemona del Friuli, via Vegliato n. 10 - VUOI ACQUISTARE QUESTO IMMOBILE ALL'ASTA? PRENOTA ORA LA TUA CONSULENZA GRATUITA! Rispondi subito a questo annuncio per ricevere il link e fissare […]
LEGGI ANCORA
Vendesi ufficio a Gemona, Gemona del Friuli
ufficio 46.740 €
Riferimento: 4459807 Via Dante Alighieri, 243, 33013 Gemona del Friuli Udine Lotto: 4 Ufficio della superficie commerciale di 127,22 mq, in Gemona del Friuli, via Dante Alighieri n. 241 Data di vendita: 21/01/2026 14:30 Offerta minima: € 46.740,00 Studio di Fattibilità Pre-Asta Offriamo consulenza legale […]
LEGGI ANCORA
- prezzo medio ufficio a Gemona del Friuli : 923 €/m²
Ufficio in vendita a Gemona, Gemona del Friuli
ufficio 46.747 €
Via Dante Alighieri, Gemona del Friuli (Udine) - Ufficio della superficie commerciale di 127,22 mq, in Gemona del Friuli, via Dante Alighieri n. 241 - VUOI ACQUISTARE QUESTO IMMOBILE ALL'ASTA? PRENOTA ORA LA TUA CONSULENZA GRATUITA! Rispondi subito a questo annuncio per ricevere il link e fissare la tua […]
LEGGI ANCORA
- prezzo medio appartamento in zona OMI B1 : 1053 €/m²
- prezzo medio appartamento a Gemona del Friuli : 940 €/m²
Ufficio in vendita a Gemona, Gemona del Friuli
ufficio 39.280 €
Riferimento: 4459805 Via Dante Alighieri, 243, 33013 Gemona del Friuli Udine Lotto: 2 Ufficio della superficie commerciale di 107,27 mq, in Gemona del Friuli, via Dante Alighieri n. 241 Data di vendita: 21/01/2026 14:30 Offerta minima: € 39.280,00 Valore di stima 69.834,55€ Studio di Fattibilità Pre-Asta […]
LEGGI ANCORA
- prezzo medio ufficio a Gemona del Friuli : 923 €/m²
Attività commerciale in vendita a Gemona, Gemona del Friuli
negozio
Riferimento ; 4463510 Gemona del Friuli, in Via Santa Lucia, 49 Unità imm. avente destinazione d’uso agenzia bancaria, ubicata nel comune di Gemona del Friuli, in Via Santa Lucia, 49, foglio 23 - particella 255 - sub 113 (ex sub. 91) - categoria catastale C/6, foglio 23 - particella 255 - sub 114 - categ […]
LEGGI ANCORA
Locale commerciale in vendita a Gemona del Friuli PREMIUM
- prezzo medio ufficio a Gemona del Friuli : 923 €/m²
Ufficio in vendita a Gemona, Gemona del Friuli
ufficio 39.281 €
Via Dante Alighieri, Gemona del Friuli (Udine) - Ufficio della superficie commerciale di 107,27 mq, in Gemona del Friuli, via Dante Alighieri n. 241 - VUOI ACQUISTARE QUESTO IMMOBILE ALL'ASTA? PRENOTA ORA LA TUA CONSULENZA GRATUITA! Rispondi subito a questo annuncio per ricevere il link e fissare la tua […]
LEGGI ANCORA
- prezzo medio appartamento in zona OMI B1 : 1053 €/m²
- prezzo medio appartamento a Gemona del Friuli : 940 €/m²
Ufficio in vendita a Gemona, Gemona del Friuli
ufficio 62.470 €
Riferimento: 4459806 Via Dante Alighieri, 243, 33013 Gemona del Friuli Udine Lotto: 3 Ufficio della superficie commerciale di 192,36 mq, in Gemona del Friuli, via Dante Alighieri n. 241 Data di vendita: 21/01/2026 14:30 Offerta minima: € 62.470 Valore di stima €. 111.069,07 Studio di Fattibilità Pre-Asta […]
LEGGI ANCORA
- prezzo medio ufficio a Gemona del Friuli : 923 €/m²
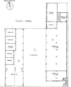
Immobile in asta di 1468 m con più di 5 locali in vendita a Gemona del Friuli
negozio
Riferimento , 4463510 Gemona del Friuli, in Via Santa Lucia, 49 Unit imm. avente destinazione d’uso agenzia bancaria, ubicata nel comune di Gemona del Friuli, in Via Santa Lucia, 49, foglio 23 - particella 255 - sub 113 (ex sub. 91) - categoria catastale C/6, foglio 23 - particella 255 - sub 114 - catego […]
LEGGI ANCORA
Non perdere gli altri 31 annunci!



