Valutazione immobiliare indipendente, accurata e gratuita
L'Opinione di Caasa® per l'appartamento in vendita a Siena in zona San Miniato a 335.000 € (cod.64ea4d58)
Secondo Caasa, per l'appartamento a Siena in zona San Miniato, la richiesta di 335.000 € è significativamente vantaggiosa rispetto agli annunci simili.
Analisi immobiliare
L'appartamento, situato nella zona OMI D3, è proposto in vendita (da SIGNORINI Agenzia Immobiliare) a
335.000 € per una
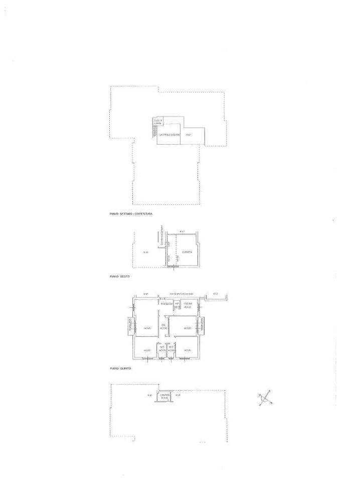
superficie commerciale di
127 m² e quindi ad un prezzo per metro quadrato pari a
2637 €/m²
.
Questo valore
è significativamente più basso di quello stimato da Caasa per immobili in vendita simili per tipologia e caratteristiche e localizzati nella stessa zona OMI, che è compreso tra
3.000 €/m² e
3.298 €/m².
Grazie alla conoscenza con buona approssimazione della localizzazione dell'immobile, è stato possibile utilizzare come raffronto i dati medi elaborati esattamente nella zona OMI di appertenenza (PIETRICCIO) per appartamenti (da 2.165 €/m² a 3.100 €/m²). Anche se Caasa non è riuscita a determinare la classe energetica, ad affinare la stima ha contribuito anche la presenza di alcune caratteristiche significative come la presenza dell'ascensore, il garage o la disponibilità di una cantina. Per queste considerazioni l'intervallo dei valori accettabili per l'offerta è relativamente limitato.
Mercato immobiliare a Siena
Per quanto riguarda più in generale la città di Siena, sono presenti al momento ben oltre 3.000 annunci per
appartamenti in vendita (meno di un terzo dell'intera provincia)
e il maggior numero di annunci per questa tipologia sono relativi alla zona di Centro Città, mentre la zona di San Miniato risulta molto meno attiva considerando il numero di annunci presenti.
La richiesta media nella zona dove sorge l'appartamento (San Miniato) è pari a
2.610 €/m², molto vicina ai valori della zona Centro Città che sono i più alti della città .
Per quanto riguarda la dinamica dei prezzi, negli ultimi 6 mesi i prezzi medi in tutta la città per appartamenti in vendita sono
sostanzialmente stabili (+0,30%).
NOVITÀ Il risultato che vedi dipende dai dati che siamo riusciti ad estrarre dall'annuncio: ottieni una stima più accuranta di questo immobile, inserendo dati più precisi.
N.B. L'Opinione di Caasa® è un servizio sperimentale realizzato tramite tecniche di Intelligenza Artificiale, fornito senza alcuna garanzia di correttezza e completezza. Leggi il disclaimer o segnalaci un problema.
IMMAGINI
IN SINTESI
DESCRIZIONE
con cantina con posto auto con terrazza con garage con cucina abitabile con balcone con ascensore
In posizione centrale con tutti i servizi a portata di mano, vendesi luminosissimo appartamento, da riammodernare, posto al quinto piano con ascensore.Il palazzo è ben tenuto, la facciata è stata rifatta recentemente ed il tetto ricontrollato. L' app […]
