Valutazione immobiliare indipendente, accurata e gratuita
Casale in vendita a Poggibonsi a 400.000 € (cod.64fe2317)
Caasa non ha sufficienti informazioni per commentare il casale in vendita a Poggibonsi - 64fe2317.
Analisi immobiliare
I dati in posseso di Caasa per quest'immobile sono insufficienti, inaffidabili o contraddittori per proporre un'analisi attendibile.
Mercato immobiliare a Poggibonsi
Per quanto riguarda più in generale la città di Poggibonsi, sono presenti al momento più di cento annunci per
casali in vendita (meno del 5% dell'intera provincia)
e il maggior numero di annunci per questa tipologia sono relativi alla zona di Staggia Senese.
La dinamica dei prezzi in tutta la città mostra che negli ultimi 6 mesi, i prezzi per casali in vendita sono
in forte calo (-39,26%).
NOVITÀ Il risultato che vedi dipende dai dati che siamo riusciti ad estrarre dall'annuncio: ottieni una stima più accuranta di questo immobile, inserendo dati più precisi.
N.B. L'Opinione di Caasa® è un servizio sperimentale realizzato tramite tecniche di Intelligenza Artificiale, fornito senza alcuna garanzia di correttezza e completezza. Leggi il disclaimer o segnalaci un problema.
IMMAGINI
IN SINTESI
PROPOSTO DA:
AG. A B MEDIAZIONI IMMOBILIARI
DESCRIZIONE
di recente ristrutturazione di recente ristrutturazione con giardino con termocondizionamento
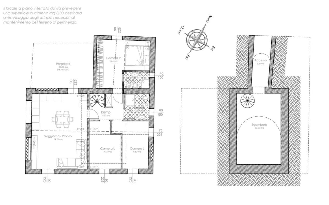
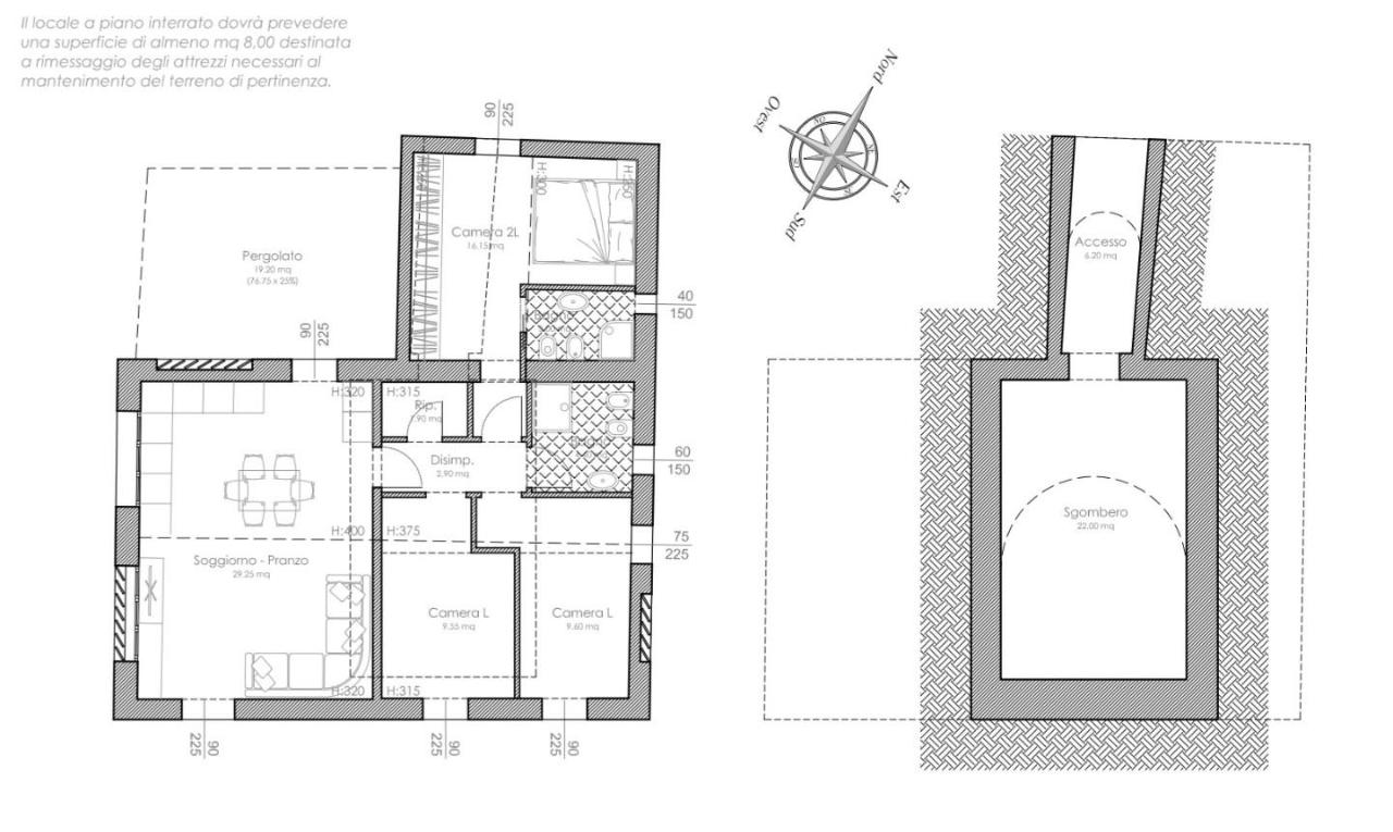
Cod.01328 Rif.Ag. 271 - In vendita a Poggibonsi, IN ZONA COLLINARE e con vista panoramica, A 5 MINUTI DA POGGIBONSI, splendido fienile DI 94 MQ DI SUP. LORDA ( più 25 mq di seminterrato), PROSSIMAMENTE OGGETTO DI RISTRUTTURAZIONE/TRASFORMAZIONE in civile abitazione. I lavori, prossimi ad iniziare, daranno luogo ad una bellissima villetta stile rustico, disposta su due piani, da poter personalizzare internamente secondo le proprie esigenze (in questa fase). Al piano seminterrato sarà presente un bellissimo rustico, di circa 25 mq, con possibilità di accesso diretto dall'abitazione. L'immobile è posto all'interno di una proprietà di circa 4.000 mq di terreno e disporrà di un riscaldamento di tipo radiante con pannelli solari. L'acqua sarà quella dell'acquedotto. Prezzo trattabile

