Valutazione immobiliare indipendente, accurata e gratuita
Appartamento in vendita a Monteriggioni a 550.000 € (cod.6505626c)
Caasa non ha sufficienti informazioni per commentare l'appartamento in vendita a Monteriggioni - 6505626c.
Analisi immobiliare
I dati in posseso di Caasa per quest'immobile sono insufficienti, inaffidabili o contraddittori per proporre un'analisi attendibile.
Mercato immobiliare a Monteriggioni
Per quanto riguarda più in generale il comune di Monteriggioni, sono presenti al momento più di 300 annunci per
appartamenti in vendita (meno del 5% dell'intera provincia)
e il maggior numero di annunci per questa tipologia sono relativi alla zona di Castellina Scalo.
Per quanto riguarda la dinamica dei prezzi, negli ultimi 6 mesi i prezzi medi in tutto il comune per appartamenti in vendita sono
in sostanziale calo (-6,02%).
NOVITÀ Il risultato che vedi dipende dai dati che siamo riusciti ad estrarre dall'annuncio: ottieni una stima più accuranta di questo immobile, inserendo dati più precisi.
N.B. L'Opinione di Caasa® è un servizio sperimentale realizzato tramite tecniche di Intelligenza Artificiale, fornito senza alcuna garanzia di correttezza e completezza. Leggi il disclaimer o segnalaci un problema.
IMMAGINI
IN SINTESI
PROPOSTO DA:
Immobiliare Celardo
DESCRIZIONE
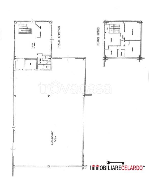
Vendesi nel Comune di Monteriggioni (SI), nei pressi dell'uscita Siena/Firenze, CAPANNONE di mq 760 (di cui mq 650 il capannone posto al piano terra con altezza 6 metri + mq 110 un appartamento posto al p1) con ampio piazzale. Classe energetica in lavorazione. La nostra agenzia è strutturata per fornirvi, gratuitamente, assistenza per la richiesta di mutuo, notaio, tecnici e quanto necessario tramite gli istituti bancari ed i professionisti ch collaborano con noi. www.immobiliarecelardo.it









