Valutazione immobiliare indipendente, accurata e gratuita
Appartamento in vendita a Colle di Val d'Elsa a 200.000 € (cod.650987fd)
Caasa non ha sufficienti informazioni per commentare l'appartamento in vendita a Colle di Val d'Elsa - 650987fd.
Analisi immobiliare
I dati in posseso di Caasa per quest'immobile sono insufficienti, inaffidabili o contraddittori per proporre un'analisi attendibile.
Mercato immobiliare a Colle di Val d'Elsa
Per quanto riguarda più in generale la città di Colle di Val d'Elsa, sono presenti al momento oltre 500 annunci per
appartamenti in vendita (meno del 10% dell'intera provincia)
e il maggior numero di annunci per questa tipologia sono relativi alla zona di Le grazie.
Relativamente alla dinamica dei prezzi, possiamo dire che negli ultimi 6 mesi i prezzi medi in tutta la città per appartamenti in vendita sono
in aumento (+4,44%).
NOVITÀ Il risultato che vedi dipende dai dati che siamo riusciti ad estrarre dall'annuncio: ottieni una stima più accuranta di questo immobile, inserendo dati più precisi.
N.B. L'Opinione di Caasa® è un servizio sperimentale realizzato tramite tecniche di Intelligenza Artificiale, fornito senza alcuna garanzia di correttezza e completezza. Leggi il disclaimer o segnalaci un problema.
IMMAGINI
IN SINTESI
PROPOSTO DA:
AEMME STUDIO IMMOBILIARE
DESCRIZIONE
di recente costruzione di recente costruzione di nuova costruzione senza ascensore
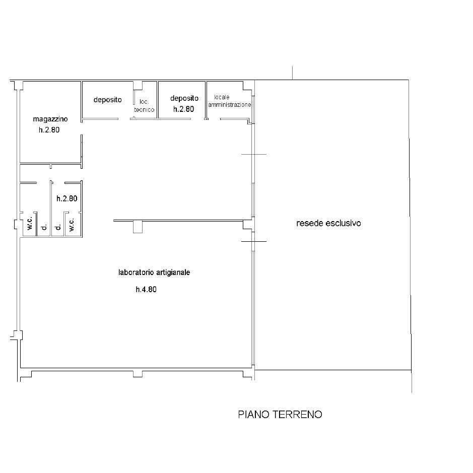
Località Belvedere, laboratorio artigianale di circa 300 mq. open space ( attualmente due locali collegati, separati da un cartongesso) corredato di zona uffici con bagni e spogliatoi. L'immobile di recente costruzione si presenta in ottime condizion […]
