Valutazione immobiliare indipendente, accurata e gratuita
Appartamento in vendita a Colle di Val d'Elsa a 139.000 € (cod.6504ca36)
Caasa non ha sufficienti informazioni per commentare l'appartamento in vendita a Colle di Val d'Elsa - 6504ca36.
Analisi immobiliare
I dati in posseso di Caasa per quest'immobile sono insufficienti, inaffidabili o contraddittori per proporre un'analisi attendibile.
Mercato immobiliare a Colle di Val d'Elsa
Per quanto riguarda più in generale la città di Colle di Val d'Elsa, sono presenti al momento oltre 500 annunci per
appartamenti in vendita (meno del 10% dell'intera provincia)
e il maggior numero di annunci per questa tipologia sono relativi alla zona di Le grazie.
Possiamo inoltre considerare che in tutta la città negli ultimi 6 mesi, i prezzi per appartamenti in vendita sono
in aumento (+4,44%).
NOVITÀ Il risultato che vedi dipende dai dati che siamo riusciti ad estrarre dall'annuncio: ottieni una stima più accuranta di questo immobile, inserendo dati più precisi.
N.B. L'Opinione di Caasa® è un servizio sperimentale realizzato tramite tecniche di Intelligenza Artificiale, fornito senza alcuna garanzia di correttezza e completezza. Leggi il disclaimer o segnalaci un problema.
IMMAGINI
IN SINTESI
PROPOSTO DA:
IMMOBILIARE I TIGLI S.R.L.
DESCRIZIONE
con terrazza con balcone con angolo cottura con ascensore
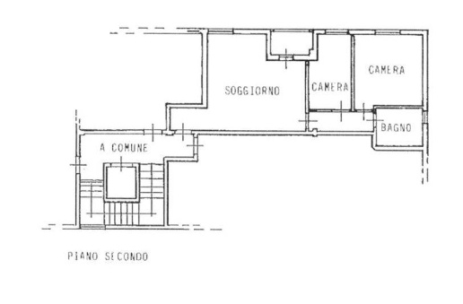
Zona Agrestone, in piacevole contesto residenziale, proponiamo appartamento posto al secondo ed ultimo piano con ascensore all'interno di una bella palazzina in mattoni faccia vista. L'immobile si sviluppa su un unico livello e si compone di ingresso, grande e luminoso soggiorno con angolo cottura e affaccio sul balcone, camera matrimoniale, camera singola e bagno finestrato. Dal soggiorno, attraverso una scala retrattile è possibile accedere ad un ampio locale sottotetto utilizzabile come vano sgombero. Da segnalare l'impianto di condizionamento e la cucina Stosa compresa nel prezzo. Soluzione ideale per chi cerca un immobile pronto per essere abitato in una zona tranquilla e servita. EPI: 124,2 kwh/m2 anno

