Valutazione immobiliare indipendente, accurata e gratuita

Appartamento in vendita a Chianciano Terme a 180.000 € (cod.64ebad24)

Caasa non ha sufficienti informazioni per commentare l'appartamento in vendita a Chianciano Terme - 64ebad24.

Analisi immobiliare
I dati in posseso di Caasa per quest'immobile sono insufficienti, inaffidabili o contraddittori per proporre un'analisi attendibile.
Mercato immobiliare a Chianciano Terme
Per quanto riguarda più in generale il comune di Chianciano Terme, sono presenti al momento più di 300 annunci per appartamenti in vendita (meno del 5% dell'intera provincia) .

Per quanto riguarda la dinamica dei prezzi, negli ultimi 6 mesi i prezzi medi in tutto il comune per appartamenti in vendita sono sostanzialmente stabili (-1,07%).

NOVITÀ Il risultato che vedi dipende dai dati che siamo riusciti ad estrarre dall'annuncio: ottieni una stima più accuranta di questo immobile, inserendo dati più precisi.

N.B. L'Opinione di Caasa® è un servizio sperimentale realizzato tramite tecniche di Intelligenza Artificiale, fornito senza alcuna garanzia di correttezza e completezza. Leggi il disclaimer o segnalaci un problema.

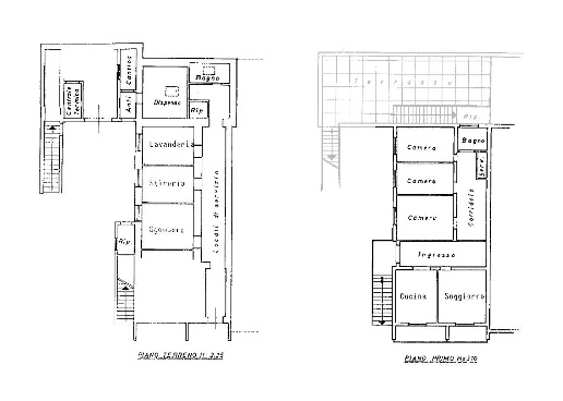
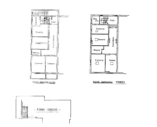
IMMAGINI

IN SINTESI

Prezzo:
180.000 €
Superficie:
580 m²
Prezzo al m²:
310 €/m²
Piano:
terra
Bagni:
6
Classe energetica:
G
Città:
Chianciano Terme (SI)
Zona OMI:
E2 (TERMALE E TURISTICA)
Indirizzo:
Pubblicato:
ven 26 aprile 2024

PROPOSTO DA:

logo Progetto Living

Progetto Living

Via dei colli 9, Chianciano Terme (SI)

Vai ai contatti

DESCRIZIONE

da ristrutturare con terrazza con posto auto con cantina con balcone con garage da ristrutturare

Nella zona centrale di Chianciano Terme vicino a tutti i servizi raggiungibili anche a piedi, vi proponiamo un immobile terra-tetto di circa 412 mq complessivi con due appartamenti indipendenti da ristrutturare oltre resede parcheggio, terrazza e balconi. Un immobile dalla grandi potenzialità: ideale per due famiglie o per chi desidera creare il suo appartamento e mettere a rendita un piano con affitti residenziali o turistici. Appartamento al piano terra + primo: mq. 153 circa, ingresso indipendente stanze divise da semplici tramezzi che posso essere abbattuti per creare ambienti personalizzati, tre bagni; al piano terra locali adibiti a magazzino e cantine. Appartamento al piano secondo + mansarda: mq . 223 circa, ingresso indipendente , grande terrazza esclusiva di circa 45 mq. stanze divise da semplici tramezzi che posso essere abbattuti per creare ambienti personalizzati, al piano superiore una grande soffitta abitabile e parzialmente mansardata completamente finestrata, garage di mq. 20. La struttura risalendo agli 60 richiede una ristrutturazione all'impiantistica oltre che agli interni. Parcheggi privati e garage/magazzino. Possibilità di vendere gli appartamenti separatamente. EPI: 600 kwh/m2 anno

  • yescasa.it
  • case24.it