Valutazione immobiliare indipendente, accurata e gratuita
Appartamento in vendita a Vernio a 37.687 € (cod.64e8b4ba)
Caasa non ha sufficienti informazioni per commentare l'appartamento in vendita a Vernio - 64e8b4ba.
Analisi immobiliare
I dati in posseso di Caasa per quest'immobile sono insufficienti, inaffidabili o contraddittori per proporre un'analisi attendibile.
Mercato immobiliare a Vernio
Per quanto riguarda più in generale il comune di Vernio, sono presenti al momento più di 150 annunci per
appartamenti in vendita (meno del 5% dell'intera provincia) .
Possiamo inoltre considerare che in tutto il comune negli ultimi 6 mesi, i prezzi per appartamenti in vendita sono
in forte aumento (+14,48%).
NOVITÀ Il risultato che vedi dipende dai dati che siamo riusciti ad estrarre dall'annuncio: ottieni una stima più accuranta di questo immobile, inserendo dati più precisi.
N.B. L'Opinione di Caasa® è un servizio sperimentale realizzato tramite tecniche di Intelligenza Artificiale, fornito senza alcuna garanzia di correttezza e completezza. Leggi il disclaimer o segnalaci un problema.
IMMAGINI
IN SINTESI
PROPOSTO DA:
Centro Aste Firenze
DESCRIZIONE
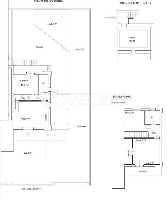
di recente costruzione con cantina in asta giudiziaria di recente costruzione
Asta a Vernio (PO) [SY574078] 59024 Vernio PO, Italia rge 696/2021 fabbricato posto in Comune di Vernio (PO), località La Pieve, comprendente piano terra, primo e interrato, composto al piano terra da cucina, salotto e ripostiglio dal quale si accede […]
