Valutazione immobiliare indipendente, accurata e gratuita
Appartamento in vendita a Prato in zona Iolo a 338.000 € (cod.658a6529)
Caasa non ha sufficienti informazioni per commentare l'appartamento in vendita a Prato in zona Iolo - 658a6529.
Analisi immobiliare
I dati in posseso di Caasa per quest'immobile sono insufficienti, inaffidabili o contraddittori per proporre un'analisi attendibile.
Mercato immobiliare a Prato
Per quanto riguarda più in generale la città di Prato, sono presenti al momento ben oltre 2.000 annunci per
appartamenti in vendita (quasi tre quarti dell'intera provincia)
e il maggior numero di annunci per questa tipologia sono relativi alla zona di Casale, mentre la zona di Iolo risulta molto meno attiva considerando il numero di annunci presenti.
La richiesta media nella zona dove sorge l'appartamento (Iolo) è pari a
2.255 €/m², molto vicina ai valori della zona La Querce che sono i più alti della città .
Relativamente alla dinamica dei prezzi, possiamo dire che negli ultimi 6 mesi i prezzi medi in tutta la città per appartamenti in vendita sono
sostanzialmente stabili (+1,18%).
NOVITÀ Il risultato che vedi dipende dai dati che siamo riusciti ad estrarre dall'annuncio: ottieni una stima più accuranta di questo immobile, inserendo dati più precisi.
N.B. L'Opinione di Caasa® è un servizio sperimentale realizzato tramite tecniche di Intelligenza Artificiale, fornito senza alcuna garanzia di correttezza e completezza. Leggi il disclaimer o segnalaci un problema.
IMMAGINI
IN SINTESI
PROPOSTO DA:
Real Home s.a.s.
DESCRIZIONE
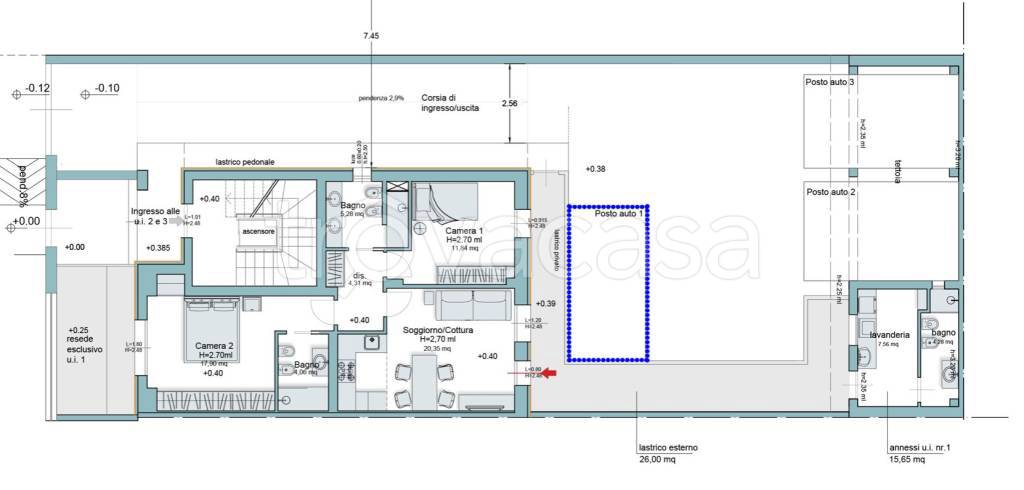
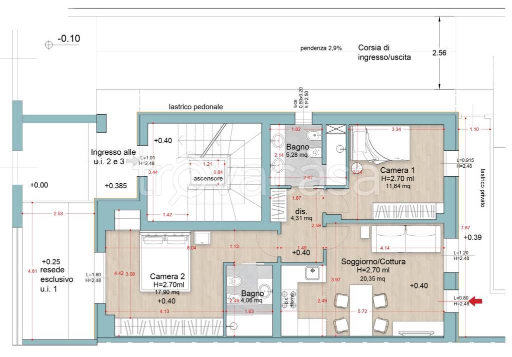
di nuova costruzione con posto auto con terrazza con giardino di recente ristrutturazione con termocondizionamento con angolo cottura di nuova costruzione
In una tranquilla zona residenziale nasce una palazzina completamente rinnovata, frutto di un attento e completo intervento di ristrutturazione, che unisce comfort, design moderno e soluzioni tecnologiche di ultima generazione in Classe A. Comfort abitativo: -Ogni appartamento è dotato di riscaldamento a pavimento e climatizzazione estiva, per vivere tutto l’anno nella massima comodità. L’impianto fotovoltaico con bollitore a pompa di calore garantisce risparmio energetico e attenzione all’ambiente. L’impianto elettrico, interamente nuovo, offre videocitofoni, tapparelle motorizzate e predisposizione per sistemi antifurto. Finiture di pregio: -Gli interni sono valorizzati da pavimenti in gres porcellanato di grande formato, porte laccate dal design elegante e portoncini blindati di sicurezza. Gli infissi in PVC con veneziane motorizzate assicurano isolamento acustico e termico ottimali. Completa il tutto una raffinata tinteggiatura in colori chiari e dettagli in pietra serena. Spazi esterni: -Le facciate e i terrazzi sono stati rinnovati con nuove impermeabilizzazioni e finiture di pregio. Le aree esterne sono pavimentate in gres e porfido, con recinzioni moderne e cancellino automatizzato. Gli annessi, ristrutturati e funzionali, ospitano lavanderia e bagno di servizio, ideali per ogni esigenza familiare. La palazzina si compone di tre unità immobiliari indipendenti, luminose ed efficienti, pensate per chi cerca una casa sicura, sostenibile e pronta da abitare. L'appartamento al piano terra è composto da un'ampia e luminosa zona giorno con angolo cottura a vista, due camere da letto di cui una matrimoniale con il bagno privato e un bagno di servizio con doccia finestrato. Completano la proprietà una resede esclusiva sia sul fronte che sul retro dell’abitazione con un posto auto privato ed una dependance esclusiva, regolarmente accatastato, perfetta per essere adibita a zona lavanderia o vano di rimessaggio. - La consegna sarà prevista per Fine 2026/Inizio 2027. Se desiderate ulteriori informazioni relati[…]

