Valutazione immobiliare indipendente, accurata e gratuita
Appartamento in vendita a Prato in zona Casale a 240.000 € (cod.657847b3)
Caasa non ha sufficienti informazioni per commentare l'appartamento in vendita a Prato in zona Casale - 657847b3.
Analisi immobiliare
I dati in posseso di Caasa per quest'immobile sono insufficienti, inaffidabili o contraddittori per proporre un'analisi attendibile.
Mercato immobiliare a Prato
Per quanto riguarda più in generale la città di Prato, sono presenti al momento ben oltre 2.000 annunci per
appartamenti in vendita (quasi tre quarti dell'intera provincia)
e il maggior numero di annunci per questa tipologia sono relativi proprio alla zona di Casale.
La richiesta media nella zona dove sorge l'appartamento (Casale) è pari a
2.290 €/m², molto vicina ai valori della zona La Querce che sono i più alti della città .
La dinamica dei prezzi in tutta la città mostra che negli ultimi 6 mesi, i prezzi per appartamenti in vendita sono
sostanzialmente stabili (+0,89%).
NOVITÀ Il risultato che vedi dipende dai dati che siamo riusciti ad estrarre dall'annuncio: ottieni una stima più accuranta di questo immobile, inserendo dati più precisi.
N.B. L'Opinione di Caasa® è un servizio sperimentale realizzato tramite tecniche di Intelligenza Artificiale, fornito senza alcuna garanzia di correttezza e completezza. Leggi il disclaimer o segnalaci un problema.
IMMAGINI
IN SINTESI
DESCRIZIONE
di nuova costruzione con posto auto con terrazza con angolo cottura di nuova costruzione senza ascensore
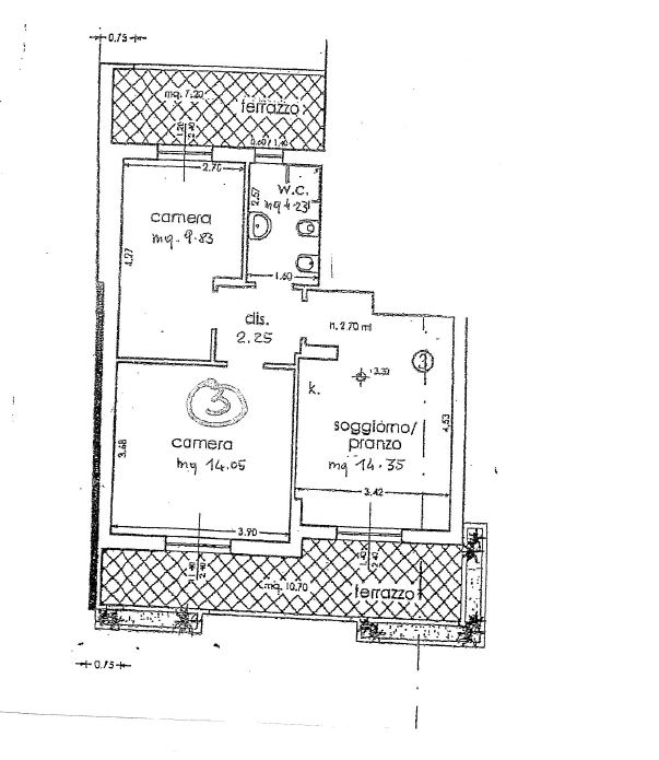
CASALE. In contesto residenziale tranquillo e servito, proponiamo in vendita, un appartamento posto al primo piano di circa 60 mq di nuova costruzione di sole cinque unità abitative con posto auto . L'immobile dispone di ingresso, si accede all'ingresso che apre su un soggiorno con angolo cottura. Proseguendo troviamo la cucina abitabile, anch'essa con uscita su una seconda terrazza abitabile, oltre a un comodo bagno di servizio. La zona notte, separata dalla zona giorno, composta da una camera matrimoniale e una camerina, entrambe con accesso diretto alla terrazza abitabile, e da un bagno a servizio delle due camere, con uscita su una terrazza. Le terrazze sono di circa in totale 20 mq. Il posto auto è di circa 12 mq. L' immobile è a pochi minuti centro di Casale, dove possiamo trovare servizi di prima necessità e negozi di vario genere, tutti raggiungibili a piedi. Il casello autostradale di Prato Ovest dista un km in auto rendendo facili gli spostamenti verso Pistoia e Firenze; la tangenziale si trova a poche centinaia di metri. Per ricevere maggiori informazioni e/o fissare un appuntamento chiamateci allo 0574448722 oppure scriveteci via mail: info@dinamocasa.it







